9 650 000 Р 119 200 $ или 102 000

Информация об помещении

1
Этаж

Состояние и оснащение

Количество этажей
1
Развернуть
Агент
+7 (982) 101-20-67
Начать чат с агентом

Склад в Тульская область, Славный городской округ, Славный пгт ул. ...

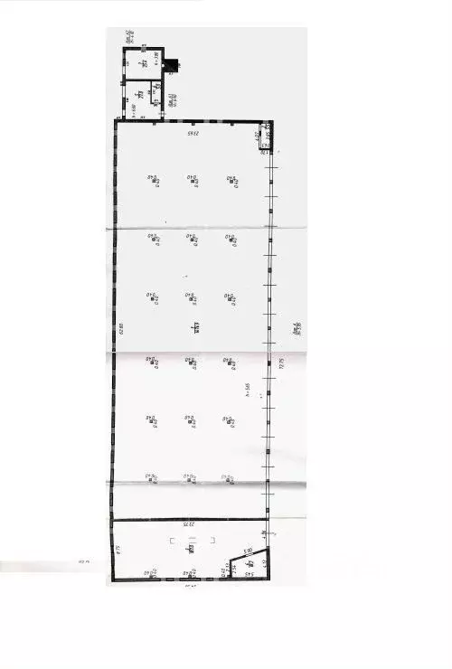
Продаётся нежилое здание 1743 м2 с земельным участком 4235 м2.Идеально подходит под:Складские помещения.Производственные цеха.Автосервис.Крытая автостоянка.Гараж.Автомобильная база.Другие коммерческие цели.Общая площадь здания:1743 м.Площадь земельного участка:4235 м.Здание:Кадастровый номер 71:02:030701:1203.Адрес: Тульская область, Арсеньевский район, пгт Славный, ул. Индустриальная, 14/2.Земельный участок:Кадастровый номер 71:02:030701:1236.Адрес: Тульская область, Арсеньевский район, пгт Славный, ул. Индустриальная, 14/2.Чистая собственность:- Владелец — физ. Лицо.- Без долгов и каких-либо обременений.- Рассрочка возможна Звоните, чтобы узнать детали и договориться о просмотре

Читать полностью
    Позвонить Написать
    9 650 000 Р119 200 $ или 102 000
    Агент
    +7 (982) 101-20-67
    Начать чат с агентом
    Похожие предложения
    Склад в Крым, Сакский район, с. Фрунзе ул. Заречная (291 м) - Фото 1
    Склад в Крым, Сакский район, с. Фрунзе ул. Заречная (291 м) - Фото 2
    Продаётся производственное помещение в с. Фрунзе. Здание не жилое (цех). Общая площадь помещения составляет 291.2 кв.м. Ранее помещение было оборудовано и использовалось, как цех для производства рыбной муки. На данный момент оборудование демонтировано...
    • 1/1 эт.
    9 700 000 Р
    Агент
    +7 (989) Показать номер
    Посмотреть контакты
    Склад в Псковская область, Печоры ул. Мелиораторов, 11 (446 м) - Фото 1
    Склад в Псковская область, Печоры ул. Мелиораторов, 11 (446 м) - Фото 2
    Предлагается к покупке одноэтажное здание площадью 446,3 кв.м в городе Печоры, кадастровый номер 60:15:1009005:31, расположен на земельном участке площадью 9666 кв.м с кадастровым номером 60:15:1009005:72.Можно использовать в качестве здания для производства,...
    • 1/1 эт.
    9 800 000 Р
    Агент
    +7 (911) Показать номер
    Посмотреть контакты
    Склад в Ленинградская область, Отрадное Кировский район, ул. Ленина, ... - Фото 1
    Склад в Ленинградская область, Отрадное Кировский район, ул. Ленина, ... - Фото 2
    Арт.Помещение под Склад ЕСТЬ ВОЗМОЖНОСТЬ СДЕЛАТЬ ПОД ВАШЕ ПРОИЗВОДСТВОГод постройки-2020S объекта - 1 486,1 м2, Технически возможно разделит на две части:S1 -673 м2, S2 - 784 м2,Конструктив: металлоконструкции, сендвич-пенели.Высота потолков; 4,5-6,0...
    • 1/1 эт.
    9 800 000 Р
    Агент
    +7 (911) Показать номер
    Посмотреть контакты
    Склад в Московская область, Лосино-Петровский ул. Ленина, 6а (13 м) - Фото 1
    Склад в Московская область, Лосино-Петровский ул. Ленина, 6а (13 м) - Фото 2
    Продается помещение площадью 13 кв.м, идеально подходящее для использования в качестве склада или хранения.Характеристики:- Общая площадь: 13 кв.м- Просторная остекленная лоджия — удобно для хранения вещей и оборудования- Помещение без коммуникаций- Первый...
    • 2/17 эт.
    9 750 000 Р
    Агент
    +7 (923) Показать номер
    Посмотреть контакты
    Склад в Новосибирская область, Бердск Промышленный пер., 2Ак11 (130 м) - Фото 1
    Склад в Новосибирская область, Бердск Промышленный пер., 2Ак11 (130 м) - Фото 2
    Продается капитальное здание общей площадью 130,2 кв.м, расположенное на земельном участке 24 сотки. Объект представляет собой готовое решение для стабильного арендного бизнеса или организации собственного производства, склада либо логистического узла....
    • 1/1 эт.
    9 800 000 Р
    Агент
    +7 (983) Показать номер
    Посмотреть контакты

    Не нашли подходящего объявления?

    Оставьте заявку, и наши риэлторы подберут склад в районе Славного

    (0)