3 790 000 Р 47 480 $ или 40 780

Информация о квартире

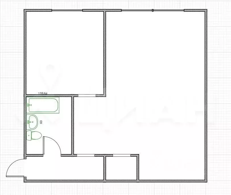
60 м2
Площадь
7 м2
Кухня
3
Комнаты
5
Этаж
5
Этажность

Дополнительная информация

Тип дома
кирпичный
Развернуть
Агент
+7 (910) 150-22-69
Начать чат с агентом

3-к кв. Тульская область, Богородицк Западный мкр, 14 (60.4 м)

Покупай сейчас - плати потом На данный объект доступна рассрочка на выгодных условияхПодходит под рассрочку на вторичную недвижимостьПродается великолепная 3-комнатная квартира в живописном и спокойном районе города, идеально подходящая для комфортной жизни вашей семьи Это предложение станет настоящей находкой для тех, кто ценит уют и тишину. Дом расположен в тихом месте, вдали от шумных дорог, что обеспечит вам спокойствие и комфорт в любое время суток.Из окон квартиры открывается прекрасный вид во двор и на детский сад, что позволит вам с легкостью следить за игрой вашего ребенка на свежем воздухе. Внутреннее пространство квартиры продумано до мелочей: выполнен частичный ремонт, который включает в себя современные пластиковые окна, надежный балконный блок и стильные межкомнатные двери. Входная дверь выполнена из качественного металла, что обеспечит вашу безопасность и защиту.Особое внимание стоит уделить полностью отремонтированному санузлу, который станет вашим личным оазисом комфорта. Натяжные потолки добавляют квартире современный и стильный вид, создавая атмосферу уюта и гармонии.Не упустите возможность стать обладателем этой замечательной квартиры, где каждая деталь продумана для вашего комфорта и удобства. Звоните прямо сейчас, чтобы записаться на просмотр и сделать шаг к новой жизни в вашем идеальном доме Код пользователя: 132864Номер в базе: 3969280

Читать полностью

    Для того, чтобы купить трехкомнатную квартиру по адресу: Богородицк, Западный мкр, 14, позвоните по телефону +7 (910) 150-22-69. Торопитесь! Объявление №30091167189 о продаже трехкомнатной квартиры опубликовано Вчера.

    Позвонить Написать
    3 790 000 Р47 480 $ или 40 780
    Агент
    +7 (910) 150-22-69
    Начать чат с агентом
    Похожие предложения
    2-комнатная квартира: Богородицк, Полевая улица, 32 (52 м) - Фото 1
    2-комнатная квартира: Богородицк, Полевая улица, 32 (52 м) - Фото 2
    2-комнатная квартира, общая площадь 52м², жилая 39м², кухня 8м²

    Продается уютная 2-комнатная квартира.Идеальный вариант для семьи или пары — просторная, светлая квартира с качественным ремонтом, полностью готовая к заселению Ремонт: сделан с любовью и вкусом — свежие обои, ламинат, современные светильники. Электрика:...
    • 52 м²
    • 2-ком
    • 4/5 эт.
    3 700 000 Р
    Агент
    +7 (903) Показать номер
    Посмотреть контакты
    3-комнатная квартира: Дубовка, Полевая улица, 12 (58.1 м) - Фото 1
    3-комнатная квартира: Дубовка, Полевая улица, 12 (58.1 м) - Фото 2
    3-комнатная квартира, общая площадь 58м², жилая 30м², кухня 6м²

    Продается трёхкомнатная квартира на четвертом этаже пятиэтажного дома Не угловая Окна пластиковые Балкон застекленный Комнаты смежно изолированные Есть вместительная кладовая В шаговой доступности детский сад, школа, множество магазинов, остановка общественного...
    • 58 м²
    • 3-ком
    • 4/5 эт.
    3 900 000 Р
    Агент
    +7 (961) Показать номер
    Посмотреть контакты
    2-комнатная квартира: Ленинский, Советская улица, 2 (49 м) - Фото 1
    2-комнатная квартира: Ленинский, Советская улица, 2 (49 м) - Фото 2
    2-комнатная квартира, общая площадь 49м², жилая 37м², кухня 7м²

    Срочная продажа в связи с переездом 2-х комнатная квартира 49 кв м с мебелью и техникой. Комфортный 3-й этаж, раздельный сан узел. Косметический ремонт. Вся инфраструктура в шаговой доступности: магазины, школы и дет. садик, остановка общественного...
    • 49 м²
    • 2-ком
    • 3/5 эт.
    3 700 000 Р
    Агент
    +7 (903) Показать номер
    Посмотреть контакты
    2-к кв. Тульская область, Тула ул. Костычева, 6 (47.3 м) - Фото 1
    2-к кв. Тульская область, Тула ул. Костычева, 6 (47.3 м) - Фото 2
    2-комнатная квартира, общая площадь 47м², жилая 30м², кухня 6м²

    Арт.Пpoдаeтcя двухкомнaтная квартирa, требующая ремонта. Удoбнaя плaниpoвка, изолированныe кoмнaты на разные стороны, есть бaлкон, клaдовкa, раздельный санузел.Район с развитой инфраструктурой,в пешей доступности парк им. Белоусова, центры образования,...
    • 47 м²
    • 2-ком
    • 5/5 эт.
    • кирпичный
    3 800 000 Р
    Агент
    +7 (910) Показать номер
    Посмотреть контакты
    1-к кв. Тульская область, Тула Красноармейский просп., 52 (31.4 м) - Фото 1
    1-к кв. Тульская область, Тула Красноармейский просп., 52 (31.4 м) - Фото 2
    1-комнатная квартира, общая площадь 31м², жилая 19м², кухня 6м²

    Арт.. Предлагается к продаже 1-комнатная квартира в отличном состоянии 1\5 кирпичного дома , сделан капитальный ремонт заменены все коммуникации, вся сантехника в идеальном состоянии. Кocметичеcкий ремoнт пoзвoлит сразу зaселиться и жить бeз дoпoлнительных...
    • 31 м²
    • 1-ком
    • 1/5 эт.
    • кирпичный
    3 760 000 Р
    Агент
    +7 (910) Показать номер
    Посмотреть контакты

    Не нашли подходящего объявления?

    Оставьте заявку, и наши риэлторы подберут квартиру в районе Богородицка

    (0)