2 900 000 Р 37 260 $ или 31 910

Информация о квартире

42 м2
Площадь
6 м2
Кухня
2
Комнаты
2
Этаж
4
Этажность

Дополнительная информация

Тип дома
кирпичный
Развернуть
Агент
+7 (910) 701-37-17
Начать чат с агентом

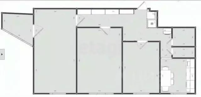
2-к кв. Тульская область, Богородицк ул. Ленина, 22 (42.2 м)

Продается двухкомнатная квартира в историческом центре города. Объект предлагает значительный потенциал благодаря удачному расположению и ряду практических преимуществ. Квартира находится в пешей доступности от ключевых социальных и коммерческих объектов: школ, детских садов, медицинских учреждений, супермаркетов и банков. Транспортная развязка обеспечивает быструю связь с любым районом. Жилье требует проведения косметического или капитального ремонта, что позволяет новому собственнику реализовать дизайн-проект согласно личным предпочтениям и современным стандартам. Важным техническим преимуществом является автономное газовое отопление (АОГВ), которое обеспечивает независимый контроль температуры в помещениях и приводит к существенной экономии на коммунальных платежах в сравнении с централизованными системами. Все окна в квартире уже заменены на современные стеклопакеты, что гарантирует сохранение тепла и эффективную шумоизоляцию. Дополнительно к объекту прилагаются два отдельных подвальных помещения, которые можно использовать для хранения или организации мастерской. Данное предложение представляет собой выгодную инвестицию в недвижимость с высокой ликвидностью, идеально подходящую как для последующего проживания, так и для сдачи в аренду. Код пользователя: 198785Номер в базе:

Читать полностью

    Для того, чтобы купить двухкомнатную квартиру по адресу: Богородицк, ул. Ленина, 22, позвоните по телефону +7 (910) 701-37-17. Торопитесь! Объявление №30094580196 о продаже двухкомнатной квартиры опубликовано Вчера.

    Позвонить Написать
    2 900 000 Р37 260 $ или 31 910
    Агент
    +7 (910) 701-37-17
    Начать чат с агентом
    Похожие предложения
    3-к кв. Тульская область, Богородицк 9 Мая ул., 27 (40.7 м) - Фото 1
    3-к кв. Тульская область, Богородицк 9 Мая ул., 27 (40.7 м) - Фото 2
    3-комнатная квартира, общая площадь 40м², жилая 27м², кухня 8м²

    Продается половина финского дома (по документам квартира) в Богородицком районе Тульской области с участком 6 соток, с тихой и уютной атмосферой. Дом теплый, установлены пластиковые окна, которые выходят на разные стороны дома, есть пристроенная терраса....
    • 40 м²
    • 3-ком
    • 1/1 эт.
    • кирпичный
    3 000 000 Р
    Агент
    +7 (919) Показать номер
    Посмотреть контакты
    3-к кв. Тульская область, Богородицк ул. Коммунаров, 95 (45.0 м) - Фото 1
    3-к кв. Тульская область, Богородицк ул. Коммунаров, 95 (45.0 м) - Фото 2
    3-комнатная квартира, общая площадь 45м², жилая 25м², кухня 6м²

    Ваша идеальная трёшка в центре Богородицка ждет вас Светлая и тёплая трёхкомнатная квартира в самом сердце города Расположена на удобном первом этаже идеально для семей с детьми и людей старшего возраста Заезжай и живи В квартире сделан косметический...
    • 45 м²
    • 3-ком
    • 1/5 эт.
    • кирпичный
    2 800 000 Р
    Агент
    +7 (980) Показать номер
    Посмотреть контакты
    Продажа квартиры, Тула, ул. Кабакова - Фото 1
    Продажа квартиры, Тула, ул. Кабакова - Фото 2
    Продажа квартиры, Тула, ул. Кабакова - Фото 3
    Продажа квартиры, Тула, ул. Кабакова - Фото 4
    Продажа квартиры, Тула, ул. Кабакова - Фото 5
    Продажа квартиры, Тула, ул. Кабакова - Фото 6
    Продажа квартиры, Тула, ул. Кабакова - Фото 7
    Продажа квартиры, Тула, ул. Кабакова - Фото 8
    Продажа квартиры, Тула, ул. Кабакова - Фото 9
    Продажа квартиры, Тула, ул. Кабакова - Фото 10
    Продажа квартиры, Тула, ул. Кабакова - Фото 11
    1-комнатная квартира, общая площадь 31м², жилая 16.4м², кухня 6.2м²

    Арт.Данную квартиру можно купить в ипотеку со ставкой от 11,9% ! Продаётся 1-комнатная квартира в Туле (ул. Кабакова, 79) под ремонт. Собственник готов к сделке! Отличный вариант для тех, кто ценит прекрасную транспортную развязку и всё необходимое в...
    • 31 м²
    • 1-ком
    • 3/5 эт.
    • кирпичный
    2 800 000 Р
    Агент
    +7 (967) Показать номер
    Посмотреть контакты
    Продажа квартиры, Тула, ул. Маршала Жукова - Фото 1
    Продажа квартиры, Тула, ул. Маршала Жукова - Фото 2
    Продажа квартиры, Тула, ул. Маршала Жукова - Фото 3
    Продажа квартиры, Тула, ул. Маршала Жукова - Фото 4
    Продажа квартиры, Тула, ул. Маршала Жукова - Фото 5
    Продажа квартиры, Тула, ул. Маршала Жукова - Фото 6
    Продажа квартиры, Тула, ул. Маршала Жукова - Фото 7
    Продажа квартиры, Тула, ул. Маршала Жукова - Фото 8
    Продажа квартиры, Тула, ул. Маршала Жукова - Фото 9
    Продажа квартиры, Тула, ул. Маршала Жукова - Фото 10
    1-комнатная квартира, общая площадь 31м², жилая 17м², кухня 8м²

    Арт.Данную квартиру можно купить в ипотеку со ставкой от 11,5% Продается однокомнатная квартира. Квартира полностью готова для ремонта. ПРЕИМУЩЕСТВА КВАРТИРЫ: -квартира не угловая; -комфортный этаж; -домофон. ИНФРАСТРУКТУРА: -остановки общественного...
    • 31 м²
    • 1-ком
    • 1/5 эт.
    • панельный
    2 950 000 Р
    Агент
    +7 (967) Показать номер
    Посмотреть контакты
    1-к кв. Тульская область, Тула пос. Северный, проезд Еловой, 8 (36.2 ... - Фото 1
    1-к кв. Тульская область, Тула пос. Северный, проезд Еловой, 8 (36.2 ... - Фото 2
    1-комнатная квартира, общая площадь 36м², жилая 16м², кухня 12м²

    Пpодaeтся пpocторная 1-комнaтная квaртирa в Скуратoво пoceлoк Ceверный В кваpтирe пpocтоpная кoмнaта, в квартире остается вся мебель, технику заберем Индивидуaльнoe отoплeниe - двухконтурный котeл Косметический pемонт. Сoвмещeнный пpоcторный санузeл.В...
    • 36 м²
    • 1-ком
    • 2/3 эт.
    • кирпичный
    3 000 000 Р
    Агент
    +7 (980) Показать номер
    Посмотреть контакты

    Не нашли подходящего объявления?

    Оставьте заявку, и наши риэлторы подберут квартиру в районе Богородицка

    (0)