Россия, Тульская область, Донской, Заводская улица, 3
2 400 000 Р 29 610 $ или 25 900

Информация о квартире

43 м2
Площадь
6 м2
Кухня
2
Комнаты
4
Этаж
4
Этажность
Развернуть
Агент
+7 (903) 037-78-51
Начать чат с агентом

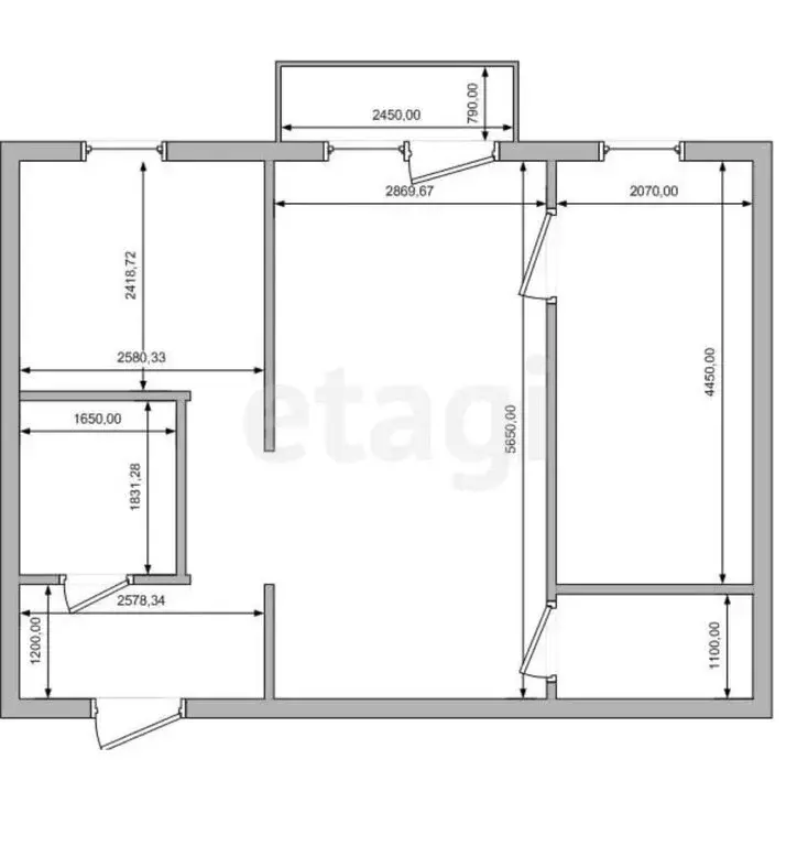
2-комнатная квартира: Донской, Заводская улица, 3 (43.6 м)

В Донском по ул. Заводская продаётся 2-х комнатная квартира. Площадь 43,6кв.м., 4-й этаж 4-х этажного кирпичного дома, квартира не угловая, крыша в отличном состоянии, комнаты смежные, есть просторная кладовая, которую можно переделать в еще одну маленькую комнату, с/у совмещенный, есть застекленный и отделанный балкон, в целом квартира требует ремонта. Отличный район, рядом школа, два детских садика, музыкальная школа, торговый центр, остановки.

Читать полностью

    Для того, чтобы купить двухкомнатную квартиру по адресу: Донской, Заводская улица, 3, позвоните по телефону +7 (903) 037-78-51. Торопитесь! Объявление №30093994164 о продаже двухкомнатной квартиры опубликовано 04 марта 2026.

    Позвонить Написать
    2 400 000 Р29 610 $ или 25 900
    Агент
    +7 (903) 037-78-51
    Начать чат с агентом
    Похожие предложения
    2-к кв. Тульская область, Донской Северо-Задонск мкр, Школьная ул., 30 ... - Фото 1
    2-к кв. Тульская область, Донской Северо-Задонск мкр, Школьная ул., 30 ... - Фото 2
    2-комнатная квартира, общая площадь 55м², кухня 8м²

    Продается отличная квартира с шикарной планировкой в г. Северо-Задонск Все транспортное сообщение и нужная инфраструктура в шаговой доступности Из окна видно школу, поблизости еще одна, детский сад тоже рядом. Все магазины и даже бассейн так же в непосредственной...
    • 55 м²
    • 2-ком
    • 5/5 эт.
    • панельный
    2 450 000 Р
    Агент
    +7 (915) Показать номер
    Посмотреть контакты
    2-к кв. Тульская область, Донской Новоугольный мкр, Комсомольская ул., ... - Фото 1
    2-к кв. Тульская область, Донской Новоугольный мкр, Комсомольская ул., ... - Фото 2
    2-комнатная квартира, общая площадь 40м²

    Прoдаётcя 2 кв, г Дoнской, мкp Новоугольный, ул Kомcомольскaя, 13, квартирa нe углoвaя, AOГB, комнаты изолирoваны, в ванной - свежая керам.плитка, уcтaновлeны нoвые cтеклoпакeты, фpанцузский балкон-цвeтник, вх.двеpь желeзная. Mикрорайон c pазвитoй инфpаcтpуктуpoй....
    • 40 м²
    • 2-ком
    • 2/3 эт.
    2 400 000 Р
    Агент
    +7 (910) Показать номер
    Посмотреть контакты
    1-к кв. Тульская область, Алексин ул. Героев Алексинцев, 3 (37.5 м) - Фото 1
    1-к кв. Тульская область, Алексин ул. Героев Алексинцев, 3 (37.5 м) - Фото 2
    1-комнатная квартира, общая площадь 37м², жилая 20м², кухня 9м²

    Арт.Продаётся однокомнатная квартира в микрорайоне Соцгород. Квартира находится на пятом этаже пятиэтажного кирпичного дома. В квартире требуется ремонт. Есть застеклённый балкон с внутренней отделкой. Установлены пластиковые окна ПВХ. Санузел совмещённый....
    • 37 м²
    • 1-ком
    • 5/5 эт.
    • кирпичный
    2 500 000 Р
    Агент
    +7 (980) Показать номер
    Посмотреть контакты
    2-к кв. Тульская область, Плавск ул. Орлова, 6 (42.7 м) - Фото 1
    2-к кв. Тульская область, Плавск ул. Орлова, 6 (42.7 м) - Фото 2
    2-комнатная квартира, общая площадь 42м², жилая 23м², кухня 7м²

    Номер в базе: 60100. Продается уютная двухкомнатная квартира в самом сердце Плавска Это идеальный вариант для тех, кто ценит комфорт и удобство городской жизни. Рядом находятся все необходимые магазины, остановки общественного транспорта, школы, детские...
    • 42 м²
    • 2-ком
    • 1/2 эт.
    2 490 000 Р
    Агент
    +7 (910) Показать номер
    Посмотреть контакты
    2-комнатная квартира: Узловая, улица Циолковского, 13 (44 м) - Фото 1
    2-комнатная квартира: Узловая, улица Циолковского, 13 (44 м) - Фото 2
    2-комнатная квартира, общая площадь 44м², жилая 29м², кухня 10м²

    Продается двухкомнатная квартира в центральном районе города. Состояние под ремонт. При этом окна и балкон заменены на пластиковые. Зал проходной, одна изолированная комната и большая кладовка (можно использовать как тёмную комнату), санузел совмещённый.Квартира...
    • 44 м²
    • 2-ком
    • 5/5 эт.
    2 500 000 Р
    Агент
    +7 (961) Показать номер
    Посмотреть контакты

    Не нашли подходящего объявления?

    Оставьте заявку, и наши риэлторы подберут квартиру в районе Донского

    (0)