Россия, Тульская область, Киреевский район, Медвенка, коттеджный посёлок Ивановка
9 200 000 Р 112 300 $ или 96 160

Информация о коттедже

158 м2
Площадь
1
Этажность
9 cоток
Участок

Дополнительная информация

Дом продаётся вместе с участком
есть
Развернуть
Агент
Ртищева Наталья Борисовна (ЭТАЖИ)
+7 (903) 841-42-90
Начать чат с агентом

Дом в Медвенка, коттеджный посёлок Ивановка (158 м)

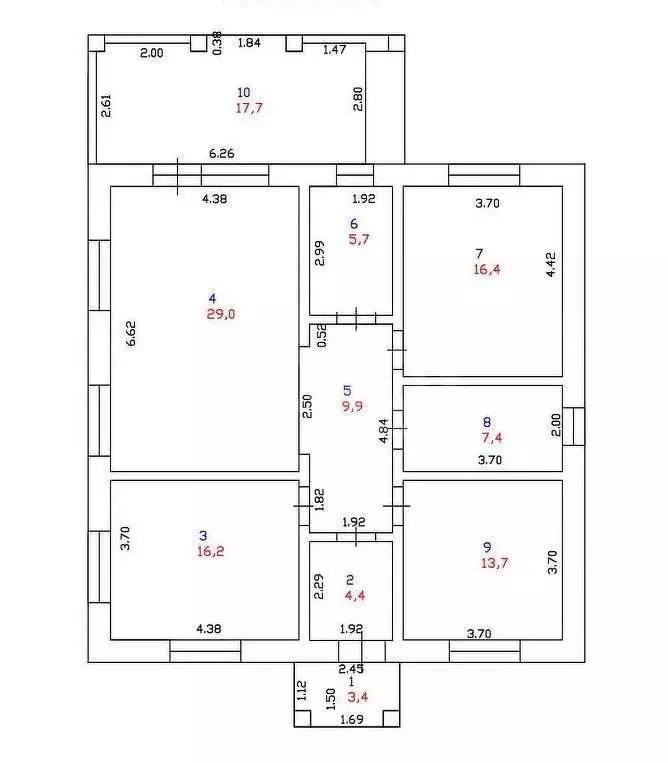
ПОДХОДИТ ПОД СЕМЕЙНУЮ ИПОТЕКУ Продается дом площадью 158 кв.м на участке 10 соток. Объект расположен в районе с прекрасными лесными пейзажами и круглогодичной транспортной доступностью, что сочетает преимущества загородной жизни с близостью к городской инфраструктуре. Планировка дома продумана для комфортного проживания: - высота потолков 3,3 метра создает ощущение простора и наполняет помещения светом - три изолированные спальни, включая просторную мастер-спальню- объединенная кухня-гостиная, которая служит удобным пространством для семейного отдыха и приема гостей- функциональная бойлерная с возможностью использования под кладовую В доме установлены качественные стеклопакеты с односторонней ламинацией и тонировкой, заведена центральная вода, установлен переливной септик. Это предложение для тех, кто ценит современный уровень комфорта, функциональность планировки и перспективы жизни за городом. Код пользователя: 28550Номер в базе: 9976797

Читать полностью

    Для того, чтобы купить 1-этажный коттедж по адресу: Медвенка, коттеджный посёлок Ивановка, позвоните по телефону +7 (903) 841-42-90. Торопитесь! Объявление №50016433386 о продаже одноэтажного коттеджа опубликовано 30 сентября 2025.

    Позвонить Написать
    9 200 000 Р112 300 $ или 96 160
    Агент
    Ртищева Наталья Борисовна (ЭТАЖИ)
    +7 (903) 841-42-90
    Начать чат с агентом
    Похожие предложения
    Дом в Тульская область, Щекинский район, Огаревское муниципальное ... - Фото 1
    Дом в Тульская область, Щекинский район, Огаревское муниципальное ... - Фото 2
    1 этаж, общая площадь 103м², участок 10 соток

    Номер в базе: 52248. Друзья, в продаже новый дом с газом по адресу обл. Тульская, г. муниципальное образование Яснополянское, посёлок Майский. Площадь дома 103 кв. м. Можно приобрести под семейную ипотеку 6 или под сельскую 3 . Расчеты платежей приложены...
    • 1 эт.
    • 103 м²
    • 10 сот.
    9 270 000 Р
    Агент
    +7 (910) Показать номер
    Посмотреть контакты
    Дом в Тульская область, Щекинский район, Яснополянское с/пос, пос. ... - Фото 1
    Дом в Тульская область, Щекинский район, Яснополянское с/пос, пос. ... - Фото 2
    1 этаж, общая площадь 101м², участок 10 соток

    Номер в базе: 53318. В продаже новый дом с газом по адресу обл. Тульская, г. муниципальное образование Яснополянское, посёлок Майский.Можно приобрести под семейную ипотеку 6 или под сельскую 3 . Расчеты платежей приложены в фотографиях.Площадь дома...
    • 1 эт.
    • 101 м²
    • 10 сот.
    9 100 000 Р
    Агент
    +7 (910) Показать номер
    Посмотреть контакты
    Коттедж в Тульская область, Заокский район, Малаховское муниципальное ... - Фото 1
    Коттедж в Тульская область, Заокский район, Малаховское муниципальное ... - Фото 2
    2 этажа, общая площадь 170м², участок 11 соток

    Дом находится в КП Романовские дачи . Возможна рассрочка.Компактный дом общей площадью 170 м2 для круглогодичного проживания, идеально подходит для данного участка. Функциональная планировка продумана до мелочей, что позволяет сделать площадь дома максимально...
    • 2 эт.
    • 170 м²
    • 11 сот.
    9 232 600 Р
    Агент
    +7 (915) Показать номер
    Посмотреть контакты
    Дом в Тульская область, Тула городской округ, пос. Новый ул. Осенняя, ... - Фото 1
    Дом в Тульская область, Тула городской округ, пос. Новый ул. Осенняя, ... - Фото 2
    2 этажа, общая площадь 210м², участок 7 соток

    Покупай сейчас - плати потом На данный объект доступна рассрочка на выгодных условияхПродается новый, современный дом, сданный в декабре 2024 года, общей площадью 210 кв. м на ухоженном участке в 7,5 соток. Это предложение для тех, кто ищет готовое к...
    • 2 эт.
    • 210 м²
    • 7 сот.
    9 200 000 Р
    Агент
    +7 (910) Показать номер
    Посмотреть контакты
    Дом в Тульская область, Тула городской округ, пос. Новый ул. Осенняя, ... - Фото 1
    Дом в Тульская область, Тула городской округ, пос. Новый ул. Осенняя, ... - Фото 2
    2 этажа, общая площадь 210м², участок 7 соток

    Покупай сейчас - плати потом На данный объект доступна рассрочка на выгодных условияхПродается новый, современный дом, сданный в декабре 2024 года, общей площадью 210 кв. м на ухоженном участке в 7,5 соток. Это предложение для тех, кто ищет готовое к...
    • 2 эт.
    • 210 м²
    • 7 сот.
    9 200 000 Р
    Агент
    +7 (910) Показать номер
    Посмотреть контакты

    Не нашли подходящего объявления?

    Оставьте заявку, и наши риэлторы подберут купить дом в районе Медвенки

    (0)