180 000 000 Р 2 366 800 $ или 2 008 400

Информация об помещении

1
Этаж

Состояние и оснащение

Количество этажей
1
Развернуть
Агент
+7 (919) 081-59-16
Начать чат с агентом

Производственное помещение в Тульская область, Липки Киреевский район, ...

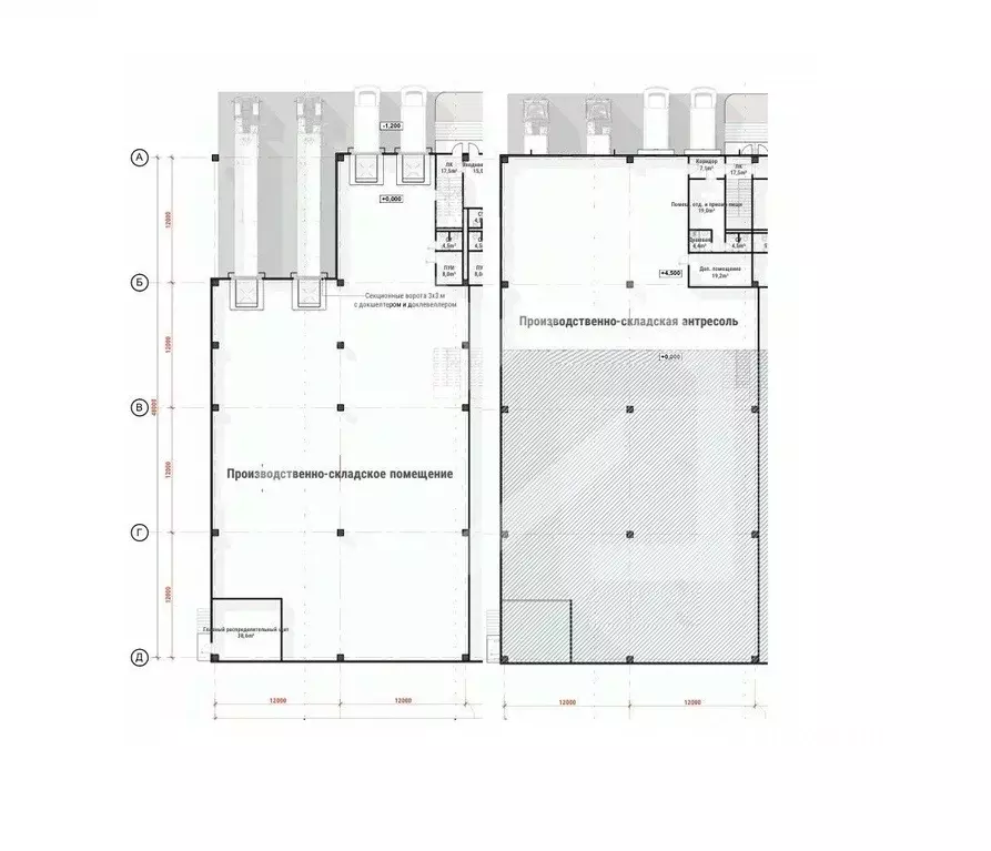
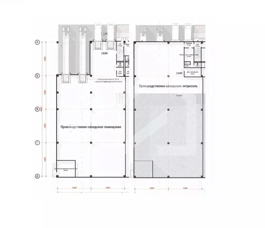
Номер в базе: 54943. Продается имущественный комплекс кирпичного завода.К продаже предлагается кирпичное производство с полным циклом и собственной сырьевой базой. Предприятие выпускает сертифицированный кирпич в соответствии с ГОСТмарок М-150 ( основной ассортимент), по заявкам возможен выпуск М-175 и М-200. Основные характеристики объекта:- Местоположение: Тульская область;- Производственная мощность: до .штук кирпича в год.- Технология: печь Гофмана- Есть проект строительства второй печи с возможностью наращивания объемов производства;- Продукция: сертифицированный кирпич, соответствующий ГОСТСырьевая база и земельные участки:- Собственный глиняный карьер;- Запас высококачественной глины - ориентировочно на 30 лет работы;- Дополнительно в собственности земельный участок сельхозназначения;Инфраструктура и активы:- Автопарк в собственности (обеспечивает автономность логистики и поставок);- Производственные и складские помещения;- На территории завода общежитие для рабочих;Финансовые показатели:- Прибыль до налогообложения за 2024 год - .рублей.Объект представляет интерес для инвесторов и профильных игроков рынка строительных материалов, желающих приобрести готовый, отлаженный бизнес с подтвержденной рентабельностью, собственной сырьевой базой и возможностью дальнейшего расширения производства.Все дополнительные вопросы, а также детали по объекту, структуре сделки и финансовым показателям готовы обсудить по телефону.

Читать полностью
    Позвонить Написать
    180 000 000 Р2 366 800 $ или 2 008 400
    Агент
    +7 (919) 081-59-16
    Начать чат с агентом
    Похожие предложения
    Производственное помещение в Тульская область, Донской проезд ... - Фото 1
    Арт.Предлагается в продажу производственный комплекс общей площадью 5200м.кв. на участке 7.7 га. Производственное помещение 3700м.кв. Офисные помещения 1500м.кв. Высота потолков 6-14 м.кв. Крановое оборудование 4-10 тон. Газ, вода, канализация, отопление,...
    • -1/2 эт.
    185 000 000 Р
    Агент
    +7 (980) Показать номер
    Посмотреть контакты
    Производственное помещение в Московская область, Богородский городской ... - Фото 1
    Производственное помещение в Московская область, Богородский городской ... - Фото 2
    1161295. Предлагается складское помещение общей площадью 1 500 кв. м. в производственно-складском комплексе формата Лайт Индастриал в черте города Ногинска. 1 этаж.Преимущества:Отличная транспортная доступность - 45 км от МКАД по федеральной трассе М7,...
    • 1/1 эт.
    180 000 000 Р
    Агент
    +7 (938) Показать номер
    Посмотреть контакты
    Производственное помещение в Московская область, Люберцы ... - Фото 1
    Производственное помещение в Московская область, Люберцы ... - Фото 2
    974725. Предлагается современный производственно-складской комплекс общей площадью 1 484.8 кв.м. на территории индустриального парка Завод , Люберцы.Преимущества: Центр крупной промышленной зоны. 6 минут пешком до станции МЦД-3 Панки , 10 минут до станции...
    • 1/1 эт.
    178 176 000 Р
    Агент
    +7 (938) Показать номер
    Посмотреть контакты
    Производственное помещение в Московская область, Люберцы ... - Фото 1
    Производственное помещение в Московская область, Люберцы ... - Фото 2
    974738. Предлагается современный производственно-складской комплекс общей площадью 1 450.9 кв.м. на территории индустриального парка Завод , Люберцы.Преимущества: Центр крупной промышленной зоны. 6 минут пешком до станции МЦД-3 Панки , 10 минут до станции...
    • 1/1 эт.
    174 108 000 Р
    Агент
    +7 (938) Показать номер
    Посмотреть контакты
    Производственное помещение в Московская область, Балашиха ул. ... - Фото 1
    Производственное помещение в Московская область, Балашиха ул. ... - Фото 2
    1001225. Предлагается складской комплекс общей площадью 1 538,9 кв.м. в Балашихе.Преимущества:Удобный выезд на Носовихинское шоссе.3,5 км от МКАД. 1,5 км от станции метро Новокосино .В пешей доступности остановки общественного транспорта.Сложившееся...
    • 1/1 эт.
    190 000 000 Р
    Агент
    +7 (938) Показать номер
    Посмотреть контакты

    Не нашли подходящего объявления?

    Оставьте заявку, и наши риэлторы подберут производственное помещение в районе Липок

    (0)