39 410 Р 518 $ или 440

Информация о помещении и здании

1
Этаж
4
Этажность
Развернуть
Агент
+7 (980) 587-90-02
Начать чат с агентом

Офис в Тульская область, Новомосковск Комсомольская ул., 34А (56 м)

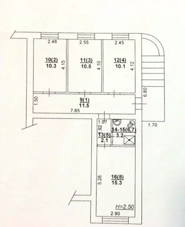
Светлое, тёплое помещение располагается на первом этаже инженерного корпуса здания ПНИУИ в центре города.Имеет отдельный вход со двора здании, что позволяет организовывать часы работы независимо от всего здания.Вход с общего коридора первого этажа здания.Туалет расположен рядом с помещением.Установленные новые пластиковые окна и светодиодные светильники.Сдаются помещения в совокупности за номерами 14,15,16,26 (см план) . Общий метраж 56,3 кв метра.Отличное состояние, после ремонта.

Читать полностью
    Позвонить Написать
    39 410 Р518 $ или 440
    Агент
    +7 (980) 587-90-02
    Начать чат с агентом
    Похожие предложения
    Офис в Брянская область, Брянск ул. Никитина, 2А (99 м) - Фото 1
    Офис в Брянская область, Брянск ул. Никитина, 2А (99 м) - Фото 2
    1-й этаж, всего 1 этаж

    Сдается помещение свободного назначения в Володарском районе по адресу ул. Никитина, дом 2А (рядом с ул. Пушкина, Димитрова, Речная) Помещение состоит из четырёх кабинетов с отдельным сан узлом и отдельным входом с улицы. Общей площадью 99 м2., Отдельный...
    • 1/1 эт.
    40 000 Р
    Агент
    +7 (910) Показать номер
    Посмотреть контакты
    Офис в Новосибирская область, Новосибирск Потанинская ул., 4 (26 м) - Фото 1
    Офис в Новосибирская область, Новосибирск Потанинская ул., 4 (26 м) - Фото 2
    3-й этаж, всего 5 этажей

    Сдается офисное помещение 32.1 м в центре Новосибирска Адрес: г. Новосибирск, ул. Потанинская, 4 Метро: Площадь Ленина — 5 минут пешкомО помещении:— Площадь: 32.1 м— Уютное, светлое помещение— Удобная планировка— Готово к аренде и работе— Есть парковкаПреимущества:—...
    • 3/5 эт.
    40 000 Р
    Агент
    +7 (983) Показать номер
    Посмотреть контакты
    Офис в Брянская область, Брянск ул. Горбатова, 41 (81 м) - Фото 1
    Офис в Брянская область, Брянск ул. Горбатова, 41 (81 м) - Фото 2
    1-й этаж, всего 10 этажей

    Сдаем помещение в аренду 81м2 с мебелью Сдаем помещение по адресу: мкр. Московский, д.59 первый этаж жилого дома с отдельным входом,круглосуточный доступ, спальный район. Отлично подойдет для офиса, бухгалтерии, логисты, юридические услуги и тд.В помещении...
    • 1/10 эт.
    40 000 Р
    Агент
    +7 (910) Показать номер
    Посмотреть контакты
    Офис в Ростовская область, Ростов-на-Дону Социалистическая ул., 109 ... - Фото 1
    Офис в Ростовская область, Ростов-на-Дону Социалистическая ул., 109 ... - Фото 2
    1-й этаж, всего 5 этажей

    Арт.Помещение на 1 этаже кирпичного жилого дома 1994 года постройки.Расположено в центре г Ростов-на-Дону, ул Социалистическая 109.В двух шагах от Ворошиловского, в одном квартале от СадовойОписание:- офисная отделка- первый этаж- все коммуникации центральные-...
    • 1/5 эт.
    40 000 Р
    Агент
    +7 (989) Показать номер
    Посмотреть контакты
    Аренда офиса 212.2 м2 - Фото 1
    Аренда офиса 212.2 м2 - Фото 2
    Аренда офиса 212.2 м2 - Фото 3
    Аренда офиса 212.2 м2 - Фото 4
    Аренда офиса 212.2 м2 - Фото 5
    Аренда офиса 212.2 м2 - Фото 6
    Аренда офиса 212.2 м2 - Фото 7
    Аренда офиса 212.2 м2 - Фото 8
    Аренда офиса 212.2 м2 - Фото 9
    Аренда офиса 212.2 м2 - Фото 10
    Аренда офиса 212.2 м2 - Фото 11
    Аренда офиса 212.2 м2 - Фото 12
    Аренда офиса 212.2 м2 - Фото 13
    Аренда офиса 212.2 м2 - Фото 14
    реализуемая площадь 212.2м², 3-й этаж, всего 3 этажа, коридорно-кабинетная планировка

    Климентовский пер-к д. 12 стр. 1, этаж 3ий Сдается в аренду помещение площадью 212,2 кв. м. Ранее находился медицинский центр, помещение возможно использовать под разный вид деятельности. Помещение в историческом центре Москвы, рядом с м. Третьяковская,...
    • 212.2 м²
    • 3/3 эт.
    707 300 Р /в месяц
    Агент
    +7 (967) Показать номер
    Посмотреть контакты

    Не нашли подходящего объявления?

    Оставьте заявку, и наши риэлторы подберут офис в районе Новомосковска

    (0)