7 555 000 Р 97 230 $ или 83 620

Информация о квартире

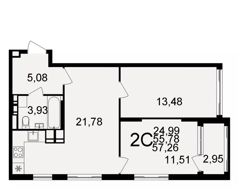
60 м2
Площадь
22 м2
Жилая
16 м2
Кухня
2
Комнаты
4
Этаж
20
Этажность

Дополнительная информация

Тип дома
монолит
Развернуть
Агент
+7 (989) 438-39-84
Начать чат с агентом

2-к кв. Тульская область, Тула (60.44 м)

- электропроводка на медном кабеле 220 V с установкой электрического щита на лестничной площадке и распределительного щита в квартире;- установлена силовая электрическая розетка для самостоятельной установки Участником электрической плиты;- штукатурка стен кроме экрана ограждений лоджий, откосов дверных и оконных проемов, ниш прохождения стояков водопровода и канализации; - стяжка пола;- шумоизоляция пола;- система отопления и горячего водоснабжения от крышной котельной с установкой коллекторов в МОП. Разводка отопления с установкой приборов отопления в соответствии с проектным решением. - установлен приточный клапан инфильтрационный вентиляционный (КИВ);- смонтированы внутриквартирные стояки водоснабжения и водоотведения (канализация) с установкой приборов учета. Разводка труб водоснабжения и водоотведения (канализация) до сантехнических приборов не производиться, сантехнические приборы: унитаз, ванна, мойка, раковина и полотенцесушитель - не устанавливаются;- оконные проемы без выхода на лоджии остеклены ПВХ-профилем с отливом и подоконником; оконные проемы с выходом на лоджии остеклены ПВХ-профилем, без отлива и подоконника; лоджии остеклены ПВХ профилем, москитные сетки не предусмотрены, места запенивания монтажной пеной и укрывания гидроизоляционным герметиком не штукатурятся;- установлена входная металлическая дверь;- установлен домофон, обеспечен доступ для подключения к телевизионному вещанию, интернету и телефонной линии.

Читать полностью
    Позвонить Написать
    7 555 000 Р97 230 $ или 83 620
    Агент
    +7 (989) 438-39-84
    Начать чат с агентом
    Похожие предложения в Туле
    2-к кв. Тульская область, Тула  (58.94 м) - Фото 1
    2-к кв. Тульская область, Тула  (58.94 м) - Фото 2
    2-комнатная квартира, общая площадь 58м²

    Продаётся 2-комнатная квартира в строящемся доме (Дом 1), срок сдачи: II-кв. 2026, общей площадью 58.94 кв.м., на 2 этаже. Что значит дышать вместе с ГК ЕДИНСТВО ? Оказаться в месте слияния человека с природой, располагающему к активному образу жизни...
    • 58 м²
    • 2-ком
    • 2/20 эт.
    7 555 000 Р
    Агент
    +7 (989) Показать номер
    Посмотреть контакты
    2-к кв. Тульская область, Тула  (55.78 м) - Фото 1
    2-к кв. Тульская область, Тула  (55.78 м) - Фото 2
    2-комнатная квартира, общая площадь 55м²

    Продаётся 2-комнатная квартира в строящемся доме (Дом 1), срок сдачи: II-кв. 2026, общей площадью 55.78 кв.м., на 11 этаже. Что значит дышать вместе с ГК ЕДИНСТВО ? Оказаться в месте слияния человека с природой, располагающему к активному образу жизни...
    • 55 м²
    • 2-ком
    • 11/20 эт.
    7 558 320 Р
    Агент
    +7 (989) Показать номер
    Посмотреть контакты
    2-к кв. Тульская область, Тула  (55.78 м) - Фото 1
    2-к кв. Тульская область, Тула  (55.78 м) - Фото 2
    2-комнатная квартира, общая площадь 55м²

    Продаётся 2-комнатная квартира в строящемся доме (Дом 1), срок сдачи: II-кв. 2026, общей площадью 55.78 кв.м., на 13 этаже. Что значит дышать вместе с ГК ЕДИНСТВО ? Оказаться в месте слияния человека с природой, располагающему к активному образу жизни...
    • 55 м²
    • 2-ком
    • 13/20 эт.
    7 558 320 Р
    Агент
    +7 (989) Показать номер
    Посмотреть контакты
    2-к кв. Тульская область, Тула  (56.53 м) - Фото 1
    2-к кв. Тульская область, Тула  (56.53 м) - Фото 2
    2-комнатная квартира, общая площадь 56м²

    Продаётся 2-комнатная квартира в строящемся доме (Дом 1), срок сдачи: II-кв. 2026, общей площадью 56.53 кв.м., на 7 этаже. Что значит дышать вместе с ГК ЕДИНСТВО ? Оказаться в месте слияния человека с природой, располагающему к активному образу жизни...
    • 56 м²
    • 2-ком
    • 7/20 эт.
    7 541 300 Р
    Агент
    +7 (989) Показать номер
    Посмотреть контакты
    2-к кв. Тульская область, Тула  (58.35 м) - Фото 1
    2-к кв. Тульская область, Тула  (58.35 м) - Фото 2
    2-комнатная квартира, общая площадь 58м²

    Продаётся 2-комнатная квартира в строящемся доме (Дом 1), срок сдачи: II-кв. 2026, общей площадью 58.35 кв.м., на 18 этаже. Что значит дышать вместе с ГК ЕДИНСТВО ? Оказаться в месте слияния человека с природой, располагающему к активному образу жизни...
    • 58 м²
    • 2-ком
    • 18/20 эт.
    7 541 100 Р
    Агент
    +7 (989) Показать номер
    Посмотреть контакты

    Не нашли подходящего объявления?

    Оставьте заявку, и наши риэлторы подберут квартиру в новостройке в районе Тулы

    (0)