Россия, Тульская область, Тула, Ключевая улица, 10

Реализация объекта недвижимости приостановлена

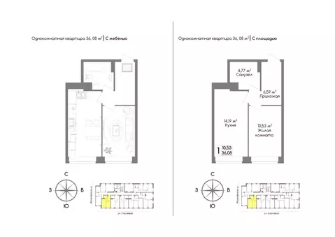
Информация о квартире

37.0 м2
Площадь
10.0 м2
Жилая
16.0 м2
Кухня
1
Комната
11
Этаж
17
Этажность
Развернуть

1-к кв. Тульская область, Тула пос. Горелки, Ключевая ул., 10 (37.5 м)

ДОМ СДАН ПРЯМАЯ ПРОДАЖА ОТ ЗАСТРОЙЩИКА ПРЕДЧИСТОВАЯ ОТДЕЛКА, РАЗВЕДЕНО ЭЛЕКТРИЧЕСТВО, УСТАНОВЛЕНЫ ПОДОКОННИКИ, ОТШТУКАТУРЕНЫ СТЕНЫ И ОТКОСЫ, СТЯЖКА ПОЛА, ИНДИВИДУАЛЬНОЕ ОТОПЛЕНИЕ, ПОСТОЯННАЯ ВХОДНАЯ ДВЕРЬ.СЕМЕЙНАЯ ИПОТЕКА от 3.5 . БАЗОВАЯ ИПОТЕКА от 13,9 .СКИДКИ ЗА НАЛИЧНЫЙ РАСЧЕТ, УЧАСТНИКАМ СВО, СТУДЕНТАМ ТУЛЬСКОЙ ОБЛАСТИ С ДЕТЬМИ.Жилой эко-комплекс АВИОНасположен в северной части города Тула в Зареченском районе.Данный район считается экологически благополучным районом Тулы. Здесь полностью отсутствуют промышленные предприятия и производства. В непосредственной близости от микрорайона находится лесной массив и водоемы.Общая площадь земельного участка, предназначенного под застройку, составляет 63 га. Проектом планировки предусмотрено строительство 40 домов переменной этажностью от 4-х до 25-ти этажей. Архитектурный облик зданий имеет яркий и современный вид.В составе жилого микрорайона также предусмотрено строительство двух общеобразовательных школ на 2000 учащихся с физкультурно-оздоровительным комплексом, трех детских садов на 650 детей, двух торгово-развлекательных центров с супермаркетом, современным фуд-холлом и фитнес - центром, а также учреждений и предприятий повседневного социально-бытового обслуживания населения с учетом проживающих на прилегающих территориях.Расположение участка в непосредственной близости от одной из основных транспортных магистралей города ул. Октябрьской является положительным фактором для будущей транспортной доступности микрорайона.Освоение территории планируется реализовывать поэтапно. Каждый из этих этапов строительства - это свой квартал с отдельным въездом и выездом, оснащенный дворовыми территориями и парковочными местами и имеющий свою индивидуально архитектурно-планировочную структуру.АВИОН — это настоящее открытие для тех, кто ценит жизнь в городе и любит природу.

Читать полностью

    Реализация объекта недвижимости приостановлена

    Не нашли подходящего объявления?

    Оставьте заявку, и наши риэлторы подберут квартиру в новостройке в районе Тулы

    (0)