Россия, Тульская область, Тула, Парк Патриот жилой комплекс

Реализация объекта недвижимости приостановлена

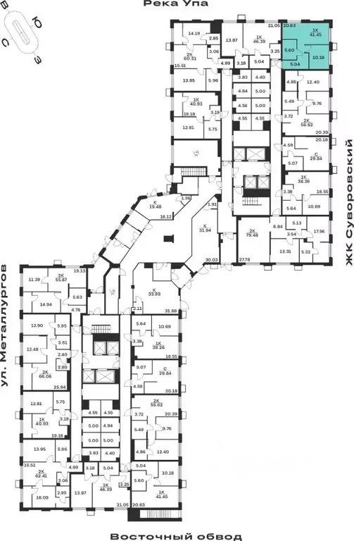
Информация о квартире

41.0 м2
Площадь
1
Комната
1
Этаж
25
Этажность

Дополнительная информация

Тип дома
монолит
Развернуть

1-к кв. Тульская область, Тула Парк Патриот жилой комплекс (41.45 м)

Продаётся 1-комнатная квартира в строящемся доме (2 этап), срок сдачи: II-кв. 2028, общей площадью 41.45 кв.м., на 1 этаже. Новый жилой комплекс Парк Патриот от застройщика СЗ Парк Патриот

Читать полностью

    Реализация объекта недвижимости приостановлена

    Не нашли подходящего объявления?

    Оставьте заявку, и наши риэлторы подберут квартиру в новостройке в районе Тулы

    (0)