Реализация объекта недвижимости приостановлена

Информация о квартире

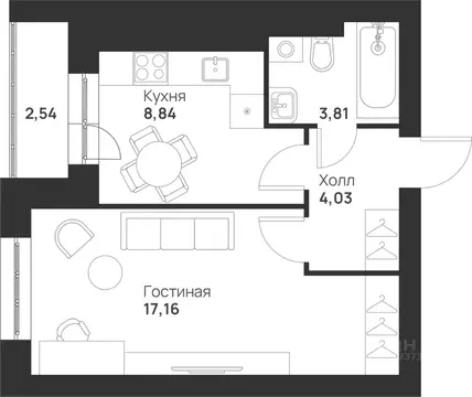
25.0 м2
Площадь
1
Комната
7
Этаж
19
Этажность
Развернуть

1-к кв. Тульская область, Тула Мясново мкр, Желания жилой комплекс ...

Квартира в новом жилом комплексе комфорт-класса Желания . Жилой комплекс Желанияасположен в Привокзальном районе на ул. Павшинский мост. Ключевая транспортная артерия Павшинского моста, позволит за 6 минут добраться до центра города или быстро выехать за его пределы.Удобное расположение сочетается с развитой инфраструктурой. В шаговой доступности находятся продуктовые и хозяйственные магазины, супермаркет, парикмахерская, маникюрный салон, пункты выдачи интернет-заказов, остановки общественного транспорта с 10 городскими маршрутами.Также будет создана собственная инфраструктура на территории ЖК. На первых этажах откроются фитнес-центр, магазины, детский центр, аптека, кофейня, пекарня и др.Рядом с ЖК будет построен новый детский сад на 200 мест.В дворе комплекса созданы разнообразные зоны, которые удовлетворят потребности всех жильцов:- Детские развивающие и игровые площадки- Спортивные площадки- Пешеходные прогулочные маршруты- Зоны для спокойного отдыха с навесами и беседками- Парковки для велосипедов- Wi-Fi- Дизайнерское комплексное озеленение и ландшафтное освещение- Круглосуточное видеонаблюдение- Безбарьерная средаСтильные дизайнерские подъезды:- Входные группы на уровне земли. Подъезды сквозные с проходом во внутренний двор и на парковку. - Помещения для хранения велосипедов, самокатов и колясок- Лифтовые холлы с понятной навигацией, 2 скоростных лифта- Зона ожидания с мягкой мебелью, где можно встретить курьера или подождать такси.Квартира правильной геометрической формы позволяет функционально использовать все пространство. Потолки 2,72 м. Будет сдаваться с отделкой:- Цементно-песчаная стяжка пола- Гидроизоляция пола в санузлах- Системы водоснабжения и отопления разведены горизонтально в конструкции пола- Качественные радиаторы отопления с возможностью регулировки тепла- Разводка электропроводки до квартирного щитка- Датчики задымления противопожарной системы- Установлены приборы учета- Выводы под интернет и ТВ - Двухкамерные стеклопакеты- На входе надежная входная металлическая дверьПри необходимости перечень работ по отделке может быть дополнен. Уточняйте информацию.Проект от надежного тульского застройщика Стройкомплект с 20-летним опытом.Ипотека по сниженным субсидированным ставкам, а также помощь в одобрении заявки. Бесплатное сопровождение сделки. 463

Читать полностью

    Реализация объекта недвижимости приостановлена

    Не нашли подходящего объявления?

    Оставьте заявку, и наши риэлторы подберут квартиру в новостройке в районе Тулы

    (0)