Россия, Тульская область, Тула, Парк Патриот жилой комплекс
3 850 200 Р 47 530 $ или 40 380

Информация о квартире

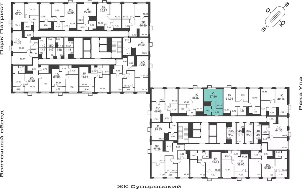
27 м2
Площадь
студия
Комнат
19
Этаж
25
Этажность

Дополнительная информация

Тип дома
монолит
Развернуть
Агент
Этажи Тула (застройщик)
+7 (989) 438-39-71
Начать чат с агентом

Студия Тульская область, Тула Парк Патриот жилой комплекс (27.9 м)

ЖК Парк Патриот излучает спокойствие и уверенность. Он не заигрывает с окружающим пространством, а меняет его по своему усмотрению.Жилой комплекс получил своё название благодаря близости к Парку Патриот . Дизайн проекта не связан напрямую с историей Тулы, но отражает ключевые черты характера жителей города-оружейников: прямолинейность, целеустремленность, решительность, а вместе с тем приветливость и добродушие.ЖК Патриот может многое предложить будущим жителям: комфортные евро-планировки. сквозные входные группы, просторные лобби и не только. По своим масштабам проект выходит за рамки термина жилой комплекс и претендует на статус отдельного района города.

Читать полностью
    Позвонить Написать
    3 850 200 Р47 530 $ или 40 380
    Агент
    Этажи Тула (застройщик)
    +7 (989) 438-39-71
    Начать чат с агентом
    Похожие предложения в Туле
    Студия Тульская область, Тула ул. Академика Насоновой, 3 (25.4 м) - Фото 1
    Студия Тульская область, Тула ул. Академика Насоновой, 3 (25.4 м) - Фото 2
    студия, общая площадь 25м²

    Продаётся студия в строящемся доме (Дом 28), срок сдачи: I-кв. 2027, общей площадью 25.4 кв.м., на 11 этаже. Расположение, транспортная доступность Новый жилой комплекс Юго-Восточный строится в Туле, в 3,5 км от центра города. Благодаря удачным транспортным...
    • 25 м²
    • студия-ком
    • 11/14 эт.
    3 810 000 Р
    Агент
    +7 (989) Показать номер
    Посмотреть контакты
    Студия Тульская область, Тула ул. Академика Насоновой, 3 (25.4 м) - Фото 1
    Студия Тульская область, Тула ул. Академика Насоновой, 3 (25.4 м) - Фото 2
    студия, общая площадь 25м²

    Продаётся студия в строящемся доме (Дом 28), срок сдачи: I-кв. 2027, общей площадью 25.4 кв.м., на 13 этаже. Расположение, транспортная доступность Новый жилой комплекс Юго-Восточный строится в Туле, в 3,5 км от центра города. Благодаря удачным транспортным...
    • 25 м²
    • студия-ком
    • 13/14 эт.
    3 810 000 Р
    Агент
    +7 (989) Показать номер
    Посмотреть контакты
    Студия Тульская область, Тула ул. Академика Насоновой, 3 (25.4 м) - Фото 1
    Студия Тульская область, Тула ул. Академика Насоновой, 3 (25.4 м) - Фото 2
    студия, общая площадь 25м²

    Продаётся студия в строящемся доме (Дом 28), срок сдачи: I-кв. 2027, общей площадью 25.4 кв.м., на 12 этаже. Расположение, транспортная доступность Новый жилой комплекс Юго-Восточный строится в Туле, в 3,5 км от центра города. Благодаря удачным транспортным...
    • 25 м²
    • студия-ком
    • 12/14 эт.
    3 810 000 Р
    Агент
    +7 (989) Показать номер
    Посмотреть контакты
    1-к кв. Тульская область, Тула  (33.2 м) - Фото 1
    1-к кв. Тульская область, Тула  (33.2 м) - Фото 2
    1-комнатная квартира, общая площадь 33м², жилая 10м², кухня 13м²

    - электропроводка на медном кабеле 220 V с установкой электрического щита на лестничной площадке и распределительного щита в квартире;- установлена силовая электрическая розетка для самостоятельной установки Участником электрической плиты;- штукатурка...
    • 33 м²
    • 1-ком
    • 15/20 эт.
    • монолит
    3 884 400 Р
    Агент
    +7 (989) Показать номер
    Посмотреть контакты
    1-к кв. Тульская область, Тула  (34.02 м) - Фото 1
    1-к кв. Тульская область, Тула  (34.02 м) - Фото 2
    1-комнатная квартира, общая площадь 34м², жилая 16м², кухня 8м²

    - электропроводка на медном кабеле 220 V с установкой электрического щита на лестничной площадке и распределительного щита в квартире;- установлена силовая электрическая розетка для самостоятельной установки Участником электрической плиты;- штукатурка...
    • 34 м²
    • 1-ком
    • 9/20 эт.
    • монолит
    3 980 340 Р
    Агент
    +7 (989) Показать номер
    Посмотреть контакты

    Не нашли подходящего объявления?

    Оставьте заявку, и наши риэлторы подберут квартиру в новостройке в районе Тулы

    (0)