6 603 390 Р 80 980 $ или 69 560

Информация о квартире

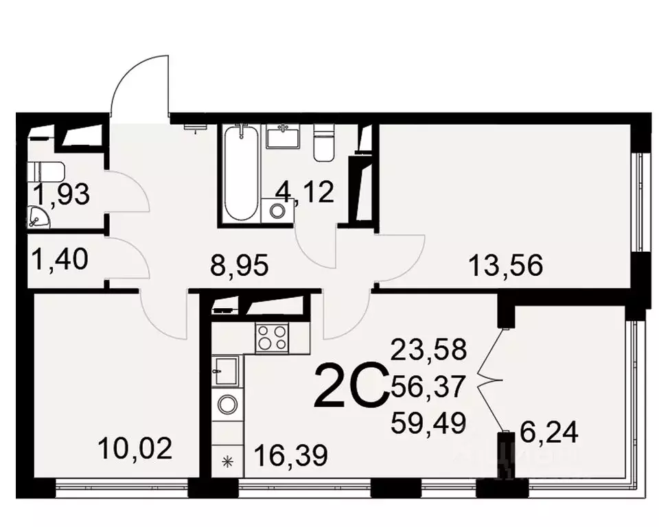
59 м2
Площадь
23 м2
Жилая
16 м2
Кухня
2
Комнаты
25
Этаж
25
Этажность
Развернуть
Агент
Этажи Тула (застройщик)
+7 (989) 438-25-99
Начать чат с агентом

2-к кв. Тульская область, Тула Мясново мкр, Сегодня жилой комплекс ...

- электропроводка на медном кабеле 220 V с установкой электрического щита в МОП и распределительного щита в квартире, смонтированы электрические розетки и выключатели;- установлена силовая электрическая розетка для самостоятельной установки Участником электрической плиты;- штукатурка стен, кроме экранов ограждения лоджий, откосов дверных и оконных проемов, ниш прохождения стояков водопровода и канализации; - стяжка пола;- шумоизоляция пола;- система отопления и горячего водоснабжения от крышной котельной с установкой коллекторов в МОП. Разводка отопления и установка приборов отопления в соответствии с проектным решением;- установлен приточный вентиляционный клапан (ДОМВЕНТ);- смонтированы внутриквартирные стояки водоснабжения и водоотведения (канализация) с установкой приборов учёта. Разводка труб водоснабжения и водоотведения (канализация) до сантехнических приборов не производится, сантехнические приборы: унитаз, ванная, мойка, раковина и полотенце сушка не устанавливаются;- оконные проёмы без выхода на лоджии остеклены ПВХ- профилем с отливом и подоконником; оконные проёмы с выходом на лоджии остеклены ПВХ- профилем без отлива и подоконника; москитные сетки не предусмотрены, места укрывания гидроизоляционным герметиком не штукатурятся;- установлена входная металлическая дверь;- установлен домофон, обеспечен доступ для подключения к телевизионному вещанию, интернету и телефонной линии.

Читать полностью
    Позвонить Написать
    6 603 390 Р80 980 $ или 69 560
    Агент
    Этажи Тула (застройщик)
    +7 (989) 438-25-99
    Начать чат с агентом
    Похожие предложения в Туле
    2-к кв. Тульская область, Тула Мясново мкр, Желания жилой комплекс ... - Фото 1
    2-к кв. Тульская область, Тула Мясново мкр, Желания жилой комплекс ... - Фото 2
    2-комнатная квартира, общая площадь 52м², кухня 15м²

    Квартира в новом жилом комплексе комфорт-класса Желания . Жилой комплекс Желанияасположен в Привокзальном районе на ул. Павшинский мост. Ключевая транспортная артерия Павшинского моста, позволит за 6 минут добраться до центра города или быстро выехать...
    • 52 м²
    • 2-ком
    • 11/19 эт.
    6 687 820 Р
    Агент
    +7 (989) Показать номер
    Посмотреть контакты
    2-к кв. Тульская область, Тула Мясново мкр, Желания жилой комплекс ... - Фото 1
    2-к кв. Тульская область, Тула Мясново мкр, Желания жилой комплекс ... - Фото 2
    2-комнатная квартира, общая площадь 52м², кухня 15м²

    Квартира в новом жилом комплексе комфорт-класса Желания . Жилой комплекс Желанияасположен в Привокзальном районе на ул. Павшинский мост. Ключевая транспортная артерия Павшинского моста, позволит за 6 минут добраться до центра города или быстро выехать...
    • 52 м²
    • 2-ком
    • 12/19 эт.
    6 687 820 Р
    Агент
    +7 (989) Показать номер
    Посмотреть контакты
    2-к кв. Тульская область, Тула Мясново мкр, Желания жилой комплекс ... - Фото 1
    2-к кв. Тульская область, Тула Мясново мкр, Желания жилой комплекс ... - Фото 2
    2-комнатная квартира, общая площадь 52м², кухня 15м²

    Квартира в новом жилом комплексе комфорт-класса Желания . Жилой комплекс Желанияасположен в Привокзальном районе на ул. Павшинский мост. Ключевая транспортная артерия Павшинского моста, позволит за 6 минут добраться до центра города или быстро выехать...
    • 52 м²
    • 2-ком
    • 13/19 эт.
    6 687 820 Р
    Агент
    +7 (989) Показать номер
    Посмотреть контакты
    2-к кв. Тульская область, Тула Мясново мкр, Желания жилой комплекс ... - Фото 1
    2-к кв. Тульская область, Тула Мясново мкр, Желания жилой комплекс ... - Фото 2
    2-комнатная квартира, общая площадь 52м², кухня 15м²

    Квартира в новом жилом комплексе комфорт-класса Желания . Жилой комплекс Желанияасположен в Привокзальном районе на ул. Павшинский мост. Ключевая транспортная артерия Павшинского моста, позволит за 6 минут добраться до центра города или быстро выехать...
    • 52 м²
    • 2-ком
    • 17/19 эт.
    6 624 320 Р
    Агент
    +7 (989) Показать номер
    Посмотреть контакты
    2-к кв. Тульская область, Тула Мясново мкр, Желания жилой комплекс ... - Фото 1
    2-к кв. Тульская область, Тула Мясново мкр, Желания жилой комплекс ... - Фото 2
    2-комнатная квартира, общая площадь 51м², кухня 15м²

    Квартира в новом жилом комплексе комфорт-класса Желания . Жилой комплекс Желанияасположен в Привокзальном районе на ул. Павшинский мост. Ключевая транспортная артерия Павшинского моста, позволит за 6 минут добраться до центра города или быстро выехать...
    • 51 м²
    • 2-ком
    • 18/19 эт.
    6 549 390 Р
    Агент
    +7 (989) Показать номер
    Посмотреть контакты

    Не нашли подходящего объявления?

    Оставьте заявку, и наши риэлторы подберут квартиру в новостройке в районе Тулы

    (0)