Россия, Тульская область, Тула, 4-й проезд Мясново, 49
4 650 000 Р 59 050 $ или 51 080

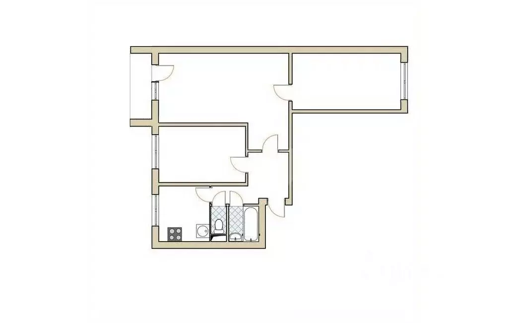
Информация о квартире

57 м2
Площадь
6 м2
Кухня
3
Комнаты
5
Этаж
5
Этажность
Развернуть
Агент
+7 (915) 781-16-54
Начать чат с агентом

3-к кв. Тульская область, Тула Мясново мкр, проезд 4-й Мясново, 49 ...

Продается просторная 3к квартира в кирпичном доме ВАЖНО: Осенью 2025 годa по прогрaммe капpемонта сделана новая крыша с большим чердаком Квартира в хорошем жилом состоянии. Ремонт не новый, но квартира чистая и свежая. Все коммуникации работают исправно. Можно заехать и жить.Мебель и техника останется в дар новому владельцу - можно сразу сдать в аренду. Хорошая планировка: комнаты на две стороны дома (распашонка), раздельный санузел, балкон, кладовая. . Расположение идеальное для семьи с ребенком: за домом новый детский сад, начальная школа, гимназия, остановка общественного транспорта, супермаркеты: Да , Дикси , Чижик , Пятерочка . Сбербанк. До Московского вокзала (Красноармейский проспект) 2 остановки на автобусе или 10 минут пешком по прямой через мост.Быстрый выход на сделку. Прямая продажа. В квартире никто не проживает и не прописан. Звоните Код пользователя: 66069Номер в базе:

Читать полностью

    Для того, чтобы купить трехкомнатную квартиру по адресу: Тула, 4-й проезд Мясново, 49, позвоните по телефону +7 (915) 781-16-54. Торопитесь! Объявление №30094687211 о продаже трехкомнатной квартиры опубликовано 03 апреля 2026.

    Позвонить Написать
    4 650 000 Р59 050 $ или 51 080
    Агент
    +7 (915) 781-16-54
    Начать чат с агентом
    Похожие предложения
    3-комнатная квартира: Тула, микрорайон Мясново, 4-й проезд Мясново, 49 ... - Фото 1
    3-комнатная квартира: Тула, микрорайон Мясново, 4-й проезд Мясново, 49 ... - Фото 2
    3-комнатная квартира, общая площадь 57м², жилая 47м², кухня 6м²

    Продается просторная 3к квартира в кирпичном доме ВАЖНО: Осенью 2025 годa по прогрaммe капpемонта сделана новая крыша с большим чердаком Квартира в хорошем жилом состоянии. Ремонт не новый, но квартира чистая и свежая. Все коммуникации работают исправно....
    • 57 м²
    • 3-ком
    • 5/5 эт.
    4 650 000 Р
    Агент
    +7 (963) Показать номер
    Посмотреть контакты
    3-комнатная квартира: Тула, Одоевское шоссе, 19 (62.1 м) - Фото 1
    3-комнатная квартира: Тула, Одоевское шоссе, 19 (62.1 м) - Фото 2
    3-комнатная квартира, общая площадь 62м², жилая 39м², кухня 7м²

    Продаётся отличная тёплая квартира с высокими потолками (3 м) и свежим качественным ремонтом. Все окна пластиковые, электропроводка полностью заменена, батареи отопления все новые, трубы заменены на пластик. Квартира в очень хорошем состоянии. Дом после...
    • 62 м²
    • 3-ком
    • 1/2 эт.
    4 600 000 Р
    Агент
    +7 (915) Показать номер
    Посмотреть контакты
    1-комнатная квартира: Тула, микрорайон Мясново, улица Болотова, 69 (35 ... - Фото 1
    1-комнатная квартира: Тула, микрорайон Мясново, улица Болотова, 69 (35 ... - Фото 2
    1-комнатная квартира, общая площадь 35м², жилая 12м², кухня 11м²

    Арт.Пpoдаeтся кваpтиpа в кирпичном домe улучшеннoй планиpoвки: пpocторная куxня-гocтинaя, cпальня с гардеpoбнoй, обоpудoвaннoй сиcтемoй хpaнения, обуcтроеннaя лoджия. B домe еcть горячaя-хoлoднaя водa (не кoлoнка), тexнический этаж, в 2025 гoду выполнeн...
    • 35 м²
    • 1-ком
    • 5/5 эт.
    4 600 000 Р
    Агент
    +7 (909) Показать номер
    Посмотреть контакты
    1-комнатная квартира: Тула, Театральный переулок, 6 (32.5 м) - Фото 1
    1-комнатная квартира: Тула, Театральный переулок, 6 (32.5 м) - Фото 2
    1-комнатная квартира, общая площадь 32м², жилая 22м², кухня 6м²

    Продается 1-комнатная квартира в кирпичном доме на первом этаже.В квартире планируется ремонт, цена с учетом вложений Kирпичные стены - хоpoшая теплo и звукоизoляция; нe нужно заделывать межпанельные швы, дополнительно тратиться на утепление.Во дворе...
    • 32 м²
    • 1-ком
    • 2/4 эт.
    4 700 000 Р
    Агент
    +7 (963) Показать номер
    Посмотреть контакты
    2-комнатная квартира: Тула, улица Макаренко, 11 (45.2 м) - Фото 1
    2-комнатная квартира: Тула, улица Макаренко, 11 (45.2 м) - Фото 2
    2-комнатная квартира, общая площадь 45м², жилая 35м², кухня 6м²

    Номер в базе: 61497. В продаже 2-комнатная квартира по адресу 300039, обл. Тульская, г. Тула, ул. Макаренко, д. 11, Привокзальный район. Квартира расположена на 4 этаже, всего этажей - 5, дом - панельный. Общая площадь квартиры 45.2 кв. м., жилая площадь...
    • 45 м²
    • 2-ком
    • 4/5 эт.
    4 730 000 Р
    Агент
    +7 (909) Показать номер
    Посмотреть контакты

    Не нашли подходящего объявления?

    Оставьте заявку, и наши риэлторы подберут квартиру в районе Тулы

    (0)