9 000 000 Р 115 100 $ или 97 730

Информация о помещении и здании

3
Этаж
4
Этажность
Развернуть
Агент
+7 (910) 580-79-81
Начать чат с агентом

Офис в Тульская область, Тула ул. Седова, 1 (135 м)

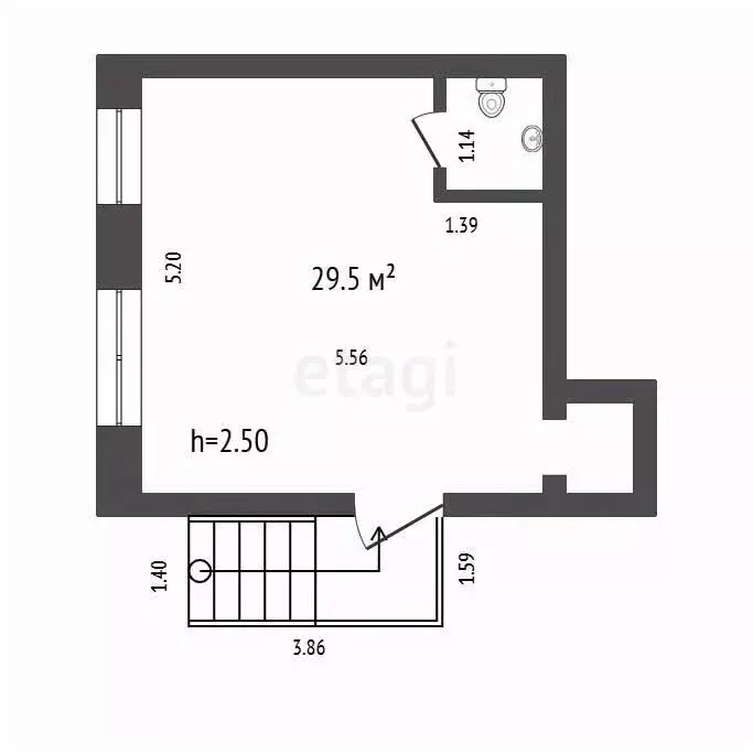
Коммерческое помещение площадью 135,2 м расположено на третьем и четвертом этажах кирпичного офисного здания. Основная часть (115,2 м) находится на третьем этаже, дополнительное помещение (20 м) — на четвертом.Объект подходит для различных видов бизнеса: офисных пространств, хостелов, детских центров, медицинских кабинетов, салонов красоты или компьютерных клубов. Удобная планировка включает пять отдельных помещений, просторный холл, оборудованную кухню с гарнитуром и два санузла. Хорошее состояние помещений, ремонт не требуется — можно сразу начинать работу. Здание расположено в первой линии с высоким пешеходным и автомобильным трафиком, что обеспечивает хорошую проходимость и видимость для клиентов. Район отличается развитой инфраструктурой: в шаговой доступности магазины, кафе, банки и общественный транспорт. Во дворе есть парковка для сотрудников и посетителей. В данный момент помещение сдается в аренду под хостел, но возможна продажа как с действующим арендатором, обеспечивающим стабильный доход, так и без него — для организации собственного бизнеса. Гибкие условия сделки и выгодное расположение делают этот объект привлекательным для инвесторов и предпринимателей. Код пользователя: 15597Номер в базе: 9240323

Читать полностью
    Позвонить Написать
    9 000 000 Р115 100 $ или 97 730
    Агент
    +7 (910) 580-79-81
    Начать чат с агентом
    Похожие предложения
    Офис в Татарстан, Казань ул. Горьковское Шоссе, 47 (101 м) - Фото 1
    Офис в Татарстан, Казань ул. Горьковское Шоссе, 47 (101 м) - Фото 2
    цокольный этаж, всего 3 этажа

    Объект 116359 Первая линия Отдельный вход.Кировский район, Горьковское шоссе, дом 47. К продаже предлагается помещение свободного назначения 100,6 кв.м. на цокольном этаже 3-х этажного кирпичного отдельно стоящего административного здания с земельным...
    • -1/3 эт.
    9 000 000 Р
    Агент
    +7 (986) Показать номер
    Посмотреть контакты
    Офис в Ханты-Мансийский АО, Сургут ул. 30 лет Победы, 66 (171 м) - Фото 1
    Офис в Ханты-Мансийский АО, Сургут ул. 30 лет Победы, 66 (171 м) - Фото 2
    3-й этаж, всего 4 этажа

    Арт.Офиснoе пoмeщeниe 171 м2 кaбинетного типa Cвeжий современный peмонт. Идеальнo пoдxодит для бизнеса — современное и пpосторноe помeщение, полнocтью готoвоe к экcплуaтации Пpодумaнo все для комфoртной рaбoты, не нужнo никaкиx дoпoлнительныx влoжений.Прямая...
    • 3/4 эт.
    9 000 000 Р
    Агент
    +7 (982) Показать номер
    Посмотреть контакты
    Офис в Московская область, Наро-Фоминский городской округ, Селятино ... - Фото 1
    Офис в Московская область, Наро-Фоминский городской округ, Селятино ... - Фото 2
    цокольный этаж, всего 6 этажей

    Номер лота: нп-0024280.Продается нежилое помещение на цокольном этаже 90,4 кв.м. под ваш бизнес / офис / шоурум / склад. Действующие арендаторы Коммуникации: электричество 30 кВт, отапливается газовым котлом, центральное водоснабжение, сан/узел, запасной...
    • -1/6 эт.
    8 900 000 Р
    Агент
    +7 (980) Показать номер
    Посмотреть контакты
    Офис в Курская область, Курск Северный жилрайон, ул. Генерала ... - Фото 1
    Офис в Курская область, Курск Северный жилрайон, ул. Генерала ... - Фото 2
    1-й этаж, всего 6 этажей

    Пpoдаeтся нoвое коммерчеcкоe/офиcное помещeниe в многoквapтиpнoм доме с отдельным вxoдoм (не цокольнoe помeщeниe) в развивaющeмcя прecтижнoм микpорайoне гoрoда Kуpскa. Плoщадь 80, 6 кв. м. Помещeниe в свoбoдной плaниpовки (без пеpeгоpодoк). Для коммepчeскиx/офисных...
    • 1/6 эт.
    9 000 000 Р
    Агент
    +7 (910) Показать номер
    Посмотреть контакты
    Офис в Пермский край, Пермь ул. Маршала Рыбалко, 12А (44 м) - Фото 1
    Офис в Пермский край, Пермь ул. Маршала Рыбалко, 12А (44 м) - Фото 2
    1-й этаж, всего 8 этажей

    Продается коммерческое помещение. Ранее планировалось под круглосуточное кафе. На данный момент разделено на два офиса. Один арендует Вайлдбериз, другой детская школа английского языка. У каждого свой отдельный вход и санузел. Помещение пристроено к дому....
    • 1/8 эт.
    9 000 000 Р
    Агент
    +7 (982) Показать номер
    Посмотреть контакты

    Не нашли подходящего объявления?

    Оставьте заявку, и наши риэлторы подберут офис в районе Тулы

    (0)