8 900 000 Р 106 000 $ или 91 480

Информация об помещении

1
Этаж

Состояние и оснащение

Количество этажей
9
Развернуть
Агент
+7 (980) 721-36-14
Начать чат с агентом

Помещение свободного назначения в Тульская область, Тула ул. Академика ...

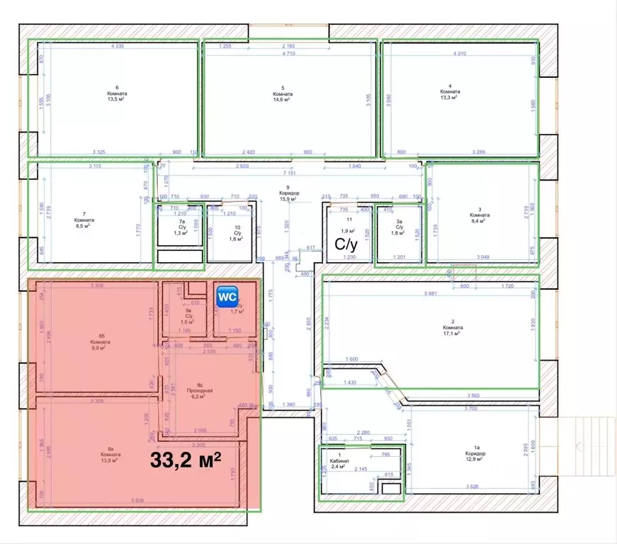
Продам помещение свободного назначения площадью 64.8 м2, район города - Центральный. Помещение располагается в 9-этажном здании, находится на 1 этаже здания. Возможное назначение - выпечка. Напротив остановка трамвая и ФК Арсенал с центральным общественным бассейном. Внутри помещения действующий бизнес по продаже цветов. По всем вопросам обращайтесь по телефонам, указанным в объявлении.

Читать полностью
    Позвонить Написать
    8 900 000 Р106 000 $ или 91 480
    Агент
    +7 (980) 721-36-14
    Начать чат с агентом
    Похожие предложения
    Помещение свободного назначения в Тульская область, Щекино ул. ... - Фото 1
    Помещение свободного назначения в Тульская область, Щекино ул. ... - Фото 2
    Арт.Продается коммерческое помещение ( бывший магазин) в очень удобном месте с высоким пешеходным и автомобильным трафиком Помещение расположено на 1-ом этаже многоквартирного дома, имеет отдельный вход с улицы.В самом помещении :входная группа, большой...
    • 1/5 эт.
    8 900 000 Р
    Агент
    +7 (910) Показать номер
    Посмотреть контакты
    Помещение свободного назначения в Севастополь ул. Вакуленчука, 17 (32 ... - Фото 1
    Помещение свободного назначения в Севастополь ул. Вакуленчука, 17 (32 ... - Фото 2
    Объект 9211. Помещение с арендатором. Продажа помещения в жилом доме, по адресу ул. Вакуленчука, д. 17. Состоит из общего зал, подсобного помещения и санузла. В помещении установлен кондиционер. Хорошее состояние ремонта, развитая инфраструктура. Параметры...
    • 1/5 эт.
    9 000 000 Р
    Агент
    +7 (918) Показать номер
    Посмотреть контакты
    Помещение свободного назначения в Новосибирская область, Новосибирский ... - Фото 1
    Помещение свободного назначения в Новосибирская область, Новосибирский ... - Фото 2
    Продается помещение 80,6 кв. м. на 1 этаже жилого дома в ЖК Экополис в с. Верх-Тула - современный жилой комплекс в 7 км от Новосибирска. Вся важнейшая инфраструктура в шаговой доступности: школа, детский сад, поликлиника и станция скорой помощи. Благоустроенная...
    • 1/9 эт.
    8 800 000 Р
    Агент
    +7 (989) Показать номер
    Посмотреть контакты
    Помещение свободного назначения в Оренбургская область, Сакмарский ... - Фото 1
    Помещение свободного назначения в Оренбургская область, Сакмарский ... - Фото 2
    Продам здание 350 кв.м на участке 5,5 сот (земли сельхоз назначения) в СНТ Сокол. Ранее использовалось как придорожное кафе. Отличное месторасположение-рядом с оживленной трассой. Коммуникации- электричество заведен л/с, отопление от комбинированного...
    • 1/2 эт.
    8 990 000 Р
    Агент
    +7 (986) Показать номер
    Посмотреть контакты
    Помещение свободного назначения в Тюменская область, Тюмень ул. ... - Фото 1
    Помещение свободного назначения в Тюменская область, Тюмень ул. ... - Фото 2
    Арт.Продается помещение свободного назначения в районе Маяка, улицы Интернациональной. Помещение расположено на 1-й линии, на 1 этаже жилого дома, подъезды на этой же стороне, высокий пешеходный и автомобильный трафик. Высота потолка 2,55 метра. Выделенная...
    • 1/10 эт.
    9 000 000 Р
    Агент
    +7 (982) Показать номер
    Посмотреть контакты

    Не нашли подходящего объявления?

    Оставьте заявку, и наши риэлторы подберут псн в районе Тулы

    (0)