900 000 Р 11 130 $ или 9 640

Информация об помещении

2
Этаж

Состояние и оснащение

Количество этажей
2
Развернуть
Агент
+7 (910) 150-28-44
Начать чат с агентом

Помещение свободного назначения в Тульская область, Тула ул. Галкина, ...

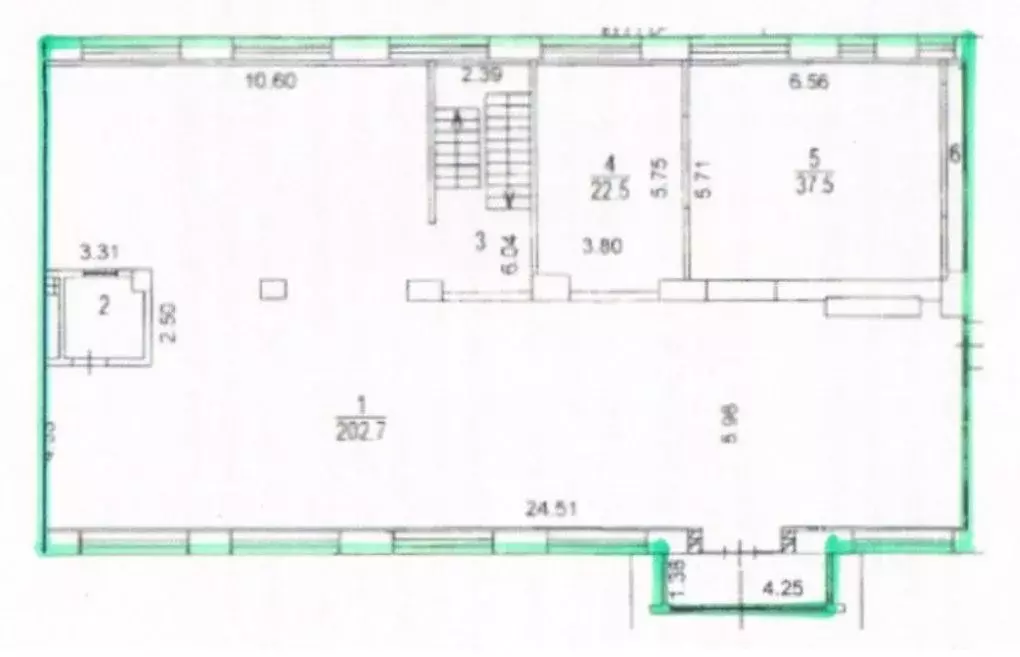
Номер в базе: 55702. Сдается в аренду торговое помещение на первом этаже в отдельно стоящем нежилом здании от общей площадью 1500м2 свободная планировка (шаг колонн 6 метров), высокие потолки 4,5 метра, грузовой лифт, парковка на 100 машин, коммуникации центральные, электрическая мощность 100 кВт. Торговый центр расположен на развязки трех районов города. Рядом находится автостанция города, музей оружия. Сдается в аренду торговое помещение на первом этаже в отдельно стоящем нежилом здании от общей площадью 1500м2 свободная планировка (шаг колонн 6 метров), высокие потолки 4,5 метра, грузовой лифт, парковка на 100 машин, коммуникации центральные, электрическая мощность 100 кВт. Торговый центр расположен на развязки трех районов города. Рядом находится автостанция города, музей оружия. Все подробности по телефону.

Читать полностью
    Позвонить Написать
    900 000 Р11 130 $ или 9 640
    Агент
    +7 (910) 150-28-44
    Начать чат с агентом
    Похожие предложения
    Помещение свободного назначения в Ленинградская область, Всеволожский ... - Фото 1
    Помещение свободного назначения в Ленинградская область, Всеволожский ... - Фото 2
    Арт.Предлагаю Вашему вниманию перспективный коммерческий объект в Новосаратовке Отличная транспортная доступность объекта - рядом выезд на КАД, Октябрьская набережная и Володарский мост на левый берег Невы Отдельно стоящее здание, своя большая парковка...
    • 1/2 эт.
    900 000 Р
    Агент
    +7 (981) Показать номер
    Посмотреть контакты
    Помещение свободного назначения в Курская область, Курск ул. Ленина, ... - Фото 1
    Помещение свободного назначения в Курская область, Курск ул. Ленина, ... - Фото 2
    Сдается в аренду статусное офисное помещение в центре города, площадью 782,7 кв.м в Бизнес Центре по адресу: Курская область, Курск, Центральный округ, улица Ленина, д 77БЛОКАЦИЯ:Центральная часть города рядом расположены ключевые торговые, административные...
    • 1/4 эт.
    900 105 Р
    Агент
    +7 (919) Показать номер
    Посмотреть контакты
    Помещение свободного назначения в Ростовская область, Ростов-на-Дону ... - Фото 1
    Помещение свободного назначения в Ростовская область, Ростов-на-Дону ... - Фото 2
    Сдается помещение на втором и третьем этажах тц Жасмин.Торговый центр имеет отличную проходимость и подходит для различных видов бизнеса. Среди текущих арендаторов — Магнит, Аптека Юг и Деловые Линии.Мощность 280 кВт, охрана, видеонаблюдение. Два...
    • 2/4 эт.
    900 000 Р
    Агент
    +7 (989) Показать номер
    Посмотреть контакты
    Помещение свободного назначения в Москва Лесная ул., 43 (225 м) - Фото 1
    Помещение свободного назначения в Москва Лесная ул., 43 (225 м) - Фото 2
    ПРЯМАЯ АРЕНДА ОТ СОБСТВЕННИКА ШОУРУМ 225 М С ВЫСОКИМИ ПОТОЛКАМИ Сдается в аренду помещение 225 м на 1-м этаже по адресу Лесная ул., 43. Прямая аренда от собственника. Цена:/мес. Удобная пешая доступность от метро Белорусская — 10 минут.Помещение премиум-класса...
    • 1/6 эт.
    890 000 Р
    Агент
    +7 (985) Показать номер
    Посмотреть контакты
    Помещение свободного назначения в Москва Мироновская ул., 33С26 (363 ... - Фото 1
    Помещение свободного назначения в Москва Мироновская ул., 33С26 (363 ... - Фото 2
    Арт.БЕЗ КОМИССИИ Предлагается к рассмотрению офисное помещение общей площадью 363 м, расположенное на первом этаже здания. Площадь первого этажа составляет 290,7 м, подвальный этаж площадью 72,3 м включает складские помещения, раздевалки и санузлы. Объект...
    • 1/5 эт.
    907 500 Р
    Агент
    +7 (933) Показать номер
    Посмотреть контакты

    Не нашли подходящего объявления?

    Оставьте заявку, и наши риэлторы подберут псн в районе Тулы

    (0)