Реализация объекта недвижимости приостановлена

Информация о квартире

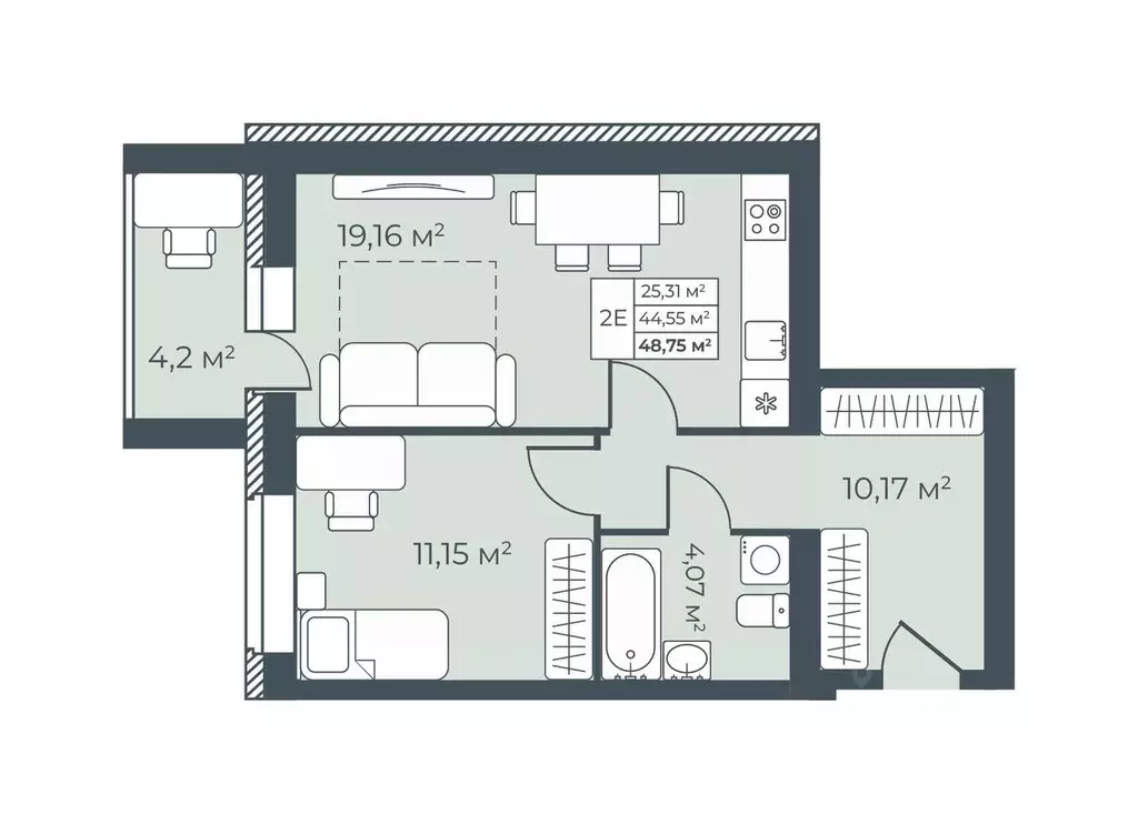
48.0 м2
Площадь
2
Комнаты
2
Этаж
8
Этажность

Дополнительная информация

Тип дома
кирпичный
Развернуть

2-к кв. Тульская область, Узловая (48.75 м)

Продаётся 2-комнатная квартира в строящемся доме (Трестовский дом), срок сдачи: I-кв. 2028, общей площадью 48.75 кв.м., на 2 этаже. Новый жилой дом от застройщика БМ-ГРУПП СЕВЕРасположен по адресу: Тульская область, ул. Узловая

Читать полностью

    Реализация объекта недвижимости приостановлена

    Не нашли подходящего объявления?

    Оставьте заявку, и наши риэлторы подберут квартиру в новостройке в районе Узловой

    (0)