 
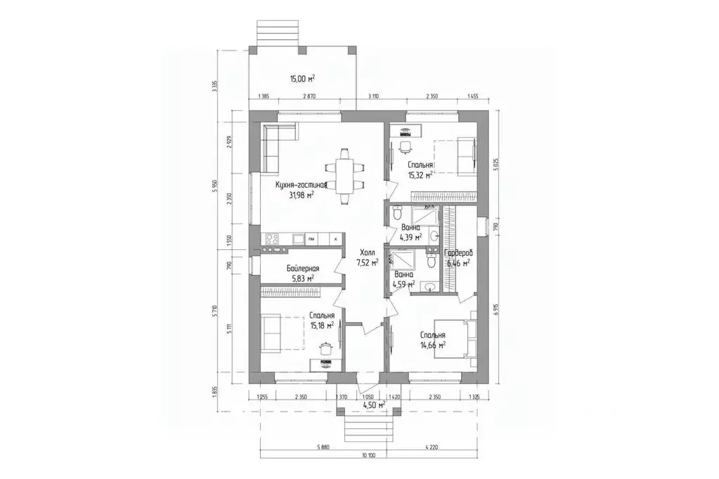
										Продается дом новой постройки, 2 этажа , общей площадью 170 KB.M.НАПРЯМУЮ ОТ ЗАСТРОЙЩИКА Дом построен из газосиликатных блоков, облицовочный кирпич, фундамент ленточный на сваях, крыша металлочерепица. Перекрытия железобетонные.На первом этаже просторная кухня-гостиная, холл, совместный санузел, котельная.На втором этаже свободная планировка. Теплый пол на первом и втором этаже. Двухконтурный котел. Пластиковые окна REHAU, ламинированные, тройной стеклопакет. Под чистовую отделку.Коммуникации: газ, электричество, вода: скважина, канализация: септик.Один собственник. Помощь в оформлении ипотеки.Гарантия юридической чистоты на всех этапах сделки
Для того, чтобы купить 2-этажный коттедж по адресу: Харино, Садовая улица, 6А, позвоните по телефону +7 (910) 580-28-58. Торопитесь! Объявление №50013156967 о продаже двухэтажного коттеджа опубликовано 27 октября 2025.
 
								 
											
                                                                         
											
                                                                         
											
                                                                         
											
                                                                         
											
                                                                        Оставьте заявку, и наши риэлторы подберут купить дом в районе Харино
