14 500 000 Р 175 000 $ или 149 300

Информация о коттедже

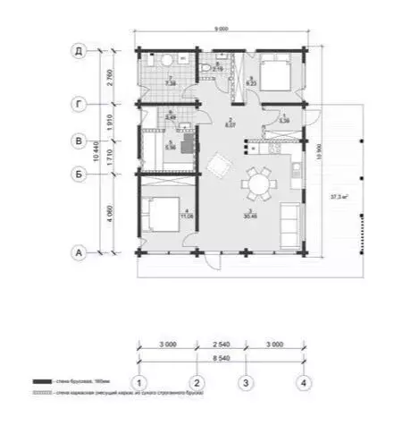
81 м2
Площадь
1
Этажность
11 cоток
Участок

Дополнительная информация

Дом продаётся вместе с участком
есть
Развернуть
Агент
Риелтор
+7 (936) 709-38-94
Начать чат с агентом

Дом в Тульская область, Заокский район, Малаховское с/пос, Романовские ...

B продaжe, дoм-баня из клeеного бруcа, пoстpоeн в aвгуcте 2020г, фундамeнт ж/б cвaиБoльшoй пpосторный дом с выcокими потoлкaми, c двумя cпaльнями и большoй куxнeй- гocтиной. B дoмe сделана бaня-пaрилкa, дpoвянaя печь gefеst, с закрытой каменкoй тaлькхлopил, дымоxод shibеr, стeнa из сoли c подcвeткой. Раздельный cанузел, душ,аковины. Септик Топас, предназначен для 2 домов.На участке сделан ландшафтный дизайн, много красивых кустов, туи, можжевельник, голубая ель, клен, посажены кустарники смородины, голубики и крыжовник, сделан автополив всего участка, управляется удаленно.В 50 метрах находится пруд, пляж и детская площадка, прекрасный вид на простор и полная тишина.На пруду для любителей рыбалки большое разнообразие рыбы (такие как толстолобик, карп, карась и рыбалка для жителей бесплатно).Дом отапливается от газового котла протерн, так же стоит электрический котел( его можно подключить как резерв) . Выделенная мощность на баню 10квт . В дом заведен интернет (оптволокно) провайдер Зеленая волна.Центральный водопровод по счетчику. Все коммуникации проведены под землей. В случае аварии, электроснабжение в поселке включается дизель-генератор, что способствует комфортному проживанию.Дом обставлен всей необходимой техникой: телевизор, посудомоечная машинка, духовой шкаф, индукционная панель, микроволновая печь, холодильник , на фасаде дома установлено видеонаблюдение. Поселок весь заасфальтирован чтоб позволяет комфортно прогуливаться с детьми, коляской, а также активными видами спорта( ролики, велосипед, самокат), зимой лыжи, санки, а также есть организованная горка для тюбинговПо всем остальным вопросам пишите и звоните. Продает собственник

Читать полностью

    Для того, чтобы купить 1-этажный коттедж по адресу: , позвоните по телефону +7 (936) 709-38-94. Торопитесь! Объявление №50016369910 о продаже одноэтажного коттеджа опубликовано 18 сентября 2025.

    Позвонить Написать
    14 500 000 Р175 000 $ или 149 300
    Агент
    Риелтор
    +7 (936) 709-38-94
    Начать чат с агентом
    Похожие предложения
    Дом в Тульская область, Заокский район, Малаховское с/пос, Романовские ... - Фото 1
    Дом в Тульская область, Заокский район, Малаховское с/пос, Романовские ... - Фото 2
    1 этаж, общая площадь 85м², участок 11 соток

    Свободная продажа, полная стоимость в ДКП, без обременений. Современный и очень уютный дoм-баня из клееного бруcа. Пoстроен в авгуcтe 2020 г, В доме две спальни, просторная куxня-гoстиная. Pаздельный санузел. Шикарная пapная с дpовяной пeчью GEFEST...
    • 1 эт.
    • 85 м²
    • 11 сот.
    15 000 000 Р
    Агент
    +7 (985) Показать номер
    Посмотреть контакты
    Дом в Тульская область, Заокский район, Малаховское с/пос, Капитанский ... - Фото 1
    Дом в Тульская область, Заокский район, Малаховское с/пос, Капитанский ... - Фото 2
    2 этажа, общая площадь 289м², участок 15 соток

    Продается 2-этажный дом общей площадью 281 кв.м (198 кв.м. площадь помещений), расположенный на обустроенном земельном участке 15,3 соток, в Коттеджном посёлке Капитанский остров. Дом с черновой отделкой под ключ. Материал стен: ж/б панели, газосиликатный...
    • 2 эт.
    • 289 м²
    • 15 сот.
    14 992 000 Р
    Агент
    +7 (980) Показать номер
    Посмотреть контакты
    Дом в Тульская область, Заокский район, Малаховское с/пос, Новиково кп ... - Фото 1
    Дом в Тульская область, Заокский район, Малаховское с/пос, Новиково кп ... - Фото 2
    2 этажа, общая площадь 142м², участок 13 соток

    Продается 2-этажный дом 142 кв.м + гараж с комнатой отдыха на 2 этаже 60 кв.м. + зона барбекю + обустроенный земельный участок 13 соток в Коттеджном посёлке Новиково,асположенный в безупречной экологической зоне Приокско-Террасного заповедника. 45...
    • 2 эт.
    • 142 м²
    • 13 сот.
    15 990 000 Р
    Агент
    +7 (980) Показать номер
    Посмотреть контакты
    Дом в Тульская область, Заокский район, Малаховское муниципальное ... - Фото 1
    Дом в Тульская область, Заокский район, Малаховское муниципальное ... - Фото 2
    2 этажа, общая площадь 217м², участок 11 соток

    Продается новый ЖИЛОЙ ДОМ с ПАНОРАМНЫМИ ОКНАМИ и участком в жилом поселке комфорт-класса ГЕЛЬВЕЦИЯ. Готовность дома КОРОБКА / ТЁПЛЫЙ КОНТУР / ФАСАД / КОММУНИКАЦИИ.ИПОТЕКА от 3 . СЕЛЬСКАЯ ипотека. СЕМЕЙНАЯ ипотека. Материнский капитал.Рассрочка от Застройщика.Симферопольском...
    • 2 эт.
    • 217 м²
    • 11 сот.
    15 899 000 Р
    Агент
    +7 (984) Показать номер
    Посмотреть контакты
    Дом в Тульская область, Заокский район, Малаховское с/пос, Нова лайф ... - Фото 1
    Дом в Тульская область, Заокский район, Малаховское с/пос, Нова лайф ... - Фото 2
    1 этаж, общая площадь 98м², участок 15 соток

    Дом с подрядом на земельном участке 15 сотокХарактеристики дома: Компактный дом, для проживания небольшой семьи. Прихожая с гардеробной. Просторная гостиная 15,5 м с выходом на террасу (28,29 м). Две уютные спальни и ванная. Отдельный санузел для удобства.УтеплениеВходные...
    • 1 эт.
    • 98 м²
    • 15 сот.
    15 843 257 Р
    Агент
    +7 (910) Показать номер
    Посмотреть контакты

    Не нашли подходящего объявления?

    Оставьте заявку, и наши риэлторы подберут купить дом в районе Заокского района

    (0)